Бізнес
Продаж від забудовника
Без комісії
Готовий співпрацювати з ріелторами
Відстань до найближчого міста: У місті
Поверховість: 2
Загальна площа: 154 м²
Кількість кімнат: 4
Площа ділянки: 5 соток
Тип будинку: Котедж
Тип стін: Цегляний
Зовнішнє утеплення стін: Мінеральна вата
Тип покрівлі: Металочерепиця
Cанвузол: 2 і більше
Опалення: Індивідуальне газове
Ремонт: Після будівельників
Меблювання: Ні
Мультимедіа: Кабельне, цифрове ТБ, Супутникове ТБ, Швидкісний інтернет
Комфорт: Альтанка, мангал, Автоматичні ворота, Балкон, Огорожа, Камін, Підігрів підлоги, Охорона території, Басейн, Тераса
Комунікації: Електрика, Газ, Каналізація септик, Свердловина
Ландшафт (до 1 км.): Ліс, Гори
Опис
Високоякісний будинок у Яремче готовий до ремонту
Вітаємо! Знайомтеся з унікальними будинками в мальовничому куточку Українських Карпат
Основна концепція нерухомості:
• Якісні будинки, придатні для постійного або тимчасового проживання (газове опалення, світло, вода, камін)
• Приватне містечко в затишному куточку міста Яремче
• Максимально розвинена інфраструктура (басейн, SPA-зона, спортивний і дитячий майданчики)
• Зручна локація: Яремче — 5 хв, Буковель — 30 хв, Івано-Франківськ — 50 хв
• Ми створили це місце, щоб ви мали свій дім у Карпатах
Як збудований будинок:
• Фундамент — моноліт із гідроізоляцією
• Зовнішні стіни — газоблок, утеплений мінеральною ватою Rockwool, армований сіткою та клеєм
• Фасад — декоративна штукатурка, яка захищає від вологи
• Дах — двосхилий, з парапетом по периметру
• Покрівля — Клік-Фальц (Німеччина, товщина 0,5 мм)
• Утеплення даху — мінеральна вата Rockwool, 200 мм
• Вікна — високоякісні металопластикові Rehau: 7 камер, 3 скла, клас енергоефективності А
• Оздоблення тераси — терасна дошка, скляні перила
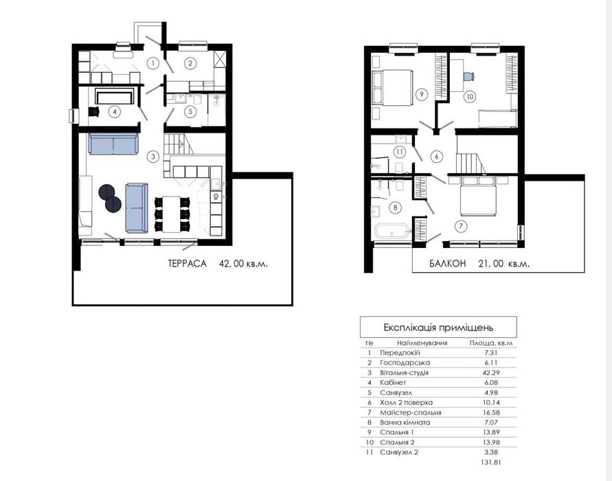
Планування:
• Площа будинку — 132 м²
• Площа терас — 60 м²
• Перший поверх: кухня-вітальня з зоною під камін, санвузол, кабінет, передпокій, тераса 42 м², господарське приміщення
• Другий поверх: майстер-спальня, дві кімнати вільного призначення, санвузол
У цих будинках ви щоранку прокидатиметеся з кавою в руках, милуючись неймовірними вершинами Карпат.
А ввечері — проводжатимете захід сонця прямо зі своєї теплої ванни, споглядаючи, як гори вкриваються малиновим сяйвом.
Вітаємо! Знайомтеся з унікальними будинками в мальовничому куточку Українських Карпат
Основна концепція нерухомості:
• Якісні будинки, придатні для постійного або тимчасового проживання (газове опалення, світло, вода, камін)
• Приватне містечко в затишному куточку міста Яремче
• Максимально розвинена інфраструктура (басейн, SPA-зона, спортивний і дитячий майданчики)
• Зручна локація: Яремче — 5 хв, Буковель — 30 хв, Івано-Франківськ — 50 хв
• Ми створили це місце, щоб ви мали свій дім у Карпатах
Як збудований будинок:
• Фундамент — моноліт із гідроізоляцією
• Зовнішні стіни — газоблок, утеплений мінеральною ватою Rockwool, армований сіткою та клеєм
• Фасад — декоративна штукатурка, яка захищає від вологи
• Дах — двосхилий, з парапетом по периметру
• Покрівля — Клік-Фальц (Німеччина, товщина 0,5 мм)
• Утеплення даху — мінеральна вата Rockwool, 200 мм
• Вікна — високоякісні металопластикові Rehau: 7 камер, 3 скла, клас енергоефективності А
• Оздоблення тераси — терасна дошка, скляні перила
Планування:
• Площа будинку — 132 м²
• Площа терас — 60 м²
• Перший поверх: кухня-вітальня з зоною під камін, санвузол, кабінет, передпокій, тераса 42 м², господарське приміщення
• Другий поверх: майстер-спальня, дві кімнати вільного призначення, санвузол
У цих будинках ви щоранку прокидатиметеся з кавою в руках, милуючись неймовірними вершинами Карпат.
А ввечері — проводжатимете захід сонця прямо зі своєї теплої ванни, споглядаючи, як гори вкриваються малиновим сяйвом.
ID: 898179255
Зв’язатися з продавцем
xxx xxx xxx

