Приватна особа
Вид об'єкта: Новобудова
Без комісії
Тип будинку: Житловий фонд від 2021 р.
Назва ЖК: Щасливий у Дніпрі
Поверх: 4
Поверховість: 10
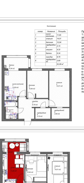
Загальна площа: 64.30 м²
Площа кухні: 18 м²
Тип стін: Цегляний
Клас житла: Комфорт
Кількість кімнат: 2 кімнати
Опалення: Індивідуальне газове
Ремонт: Житловий стан
Комфорт: Охорона території, Балкон, лоджія, Конс'ерж, Гардероб, Ліфт, Пожежна сигналізація, Підземний паркінг, Гостьовий паркінг, Відеоспостереження, Підігрів підлоги, Кондиціонер, Панорамні вікна
Комунікації: Вивіз відходів, Центральна каналізація, Газ, Електрика, Асфальтована дорога, Центральний водопровід
Опис
Квартира новобудова, на продаж.
Поруч вул. Гагаріна, Макдональдс, ТЦ Даффі.
Вікна в сторону шоссе. Жк під цілодобовою охороною, відеоспостереження. Є дитячий майданчик, є спортмайданчик.
4 етаж, 64,3м2
Більшість чорнових робіт виконано.
-зроблені перегородки з утеплювачем і звукоізоляцією.
-Стяжка з утеплювачем
-зроблені комунікації під сантехніку, встановлена інсталяція
-тепла підлога, батареї в кімнатах.
-проведені комунікації під кондиціонер
-проведена електрика, интернет в кожну кімнату, кухню
-утеплена лоджія.
-вивід комунікацій під домофон
-стіни оштукатерені, частково відшпакльовані.
-встановлені вхідні двері з італійськими замками та інше.
газ, світло, вода все є.. опалення працює.
Робилось для себе з високоякісного матеріалу.
Адреса: Запорізьке Шоссе 32а
Пропозиція від власника. Право власності.
Поруч вул. Гагаріна, Макдональдс, ТЦ Даффі.
Вікна в сторону шоссе. Жк під цілодобовою охороною, відеоспостереження. Є дитячий майданчик, є спортмайданчик.
4 етаж, 64,3м2
Більшість чорнових робіт виконано.
-зроблені перегородки з утеплювачем і звукоізоляцією.
-Стяжка з утеплювачем
-зроблені комунікації під сантехніку, встановлена інсталяція
-тепла підлога, батареї в кімнатах.
-проведені комунікації під кондиціонер
-проведена електрика, интернет в кожну кімнату, кухню
-утеплена лоджія.
-вивід комунікацій під домофон
-стіни оштукатерені, частково відшпакльовані.
-встановлені вхідні двері з італійськими замками та інше.
газ, світло, вода все є.. опалення працює.
Робилось для себе з високоякісного матеріалу.
Адреса: Запорізьке Шоссе 32а
Пропозиція від власника. Право власності.
ID: 833532216
Зв’язатися з продавцем
xxx xxx xxx
Опубліковано 10 листопада 2025 р.
Власник. Продаж кв в новобудові з частк-м ремонтм ЖК Щасливий у Дніпрі
65 000 $
Договірна
Місцезнаходження
Дніпро, Шевченківський
Дніпропетровська область