Бізнес
Вид об'єкта: Новобудова
Тип будинку: Житловий фонд 2011-2020-і
Поверх: 8
Поверховість: 9
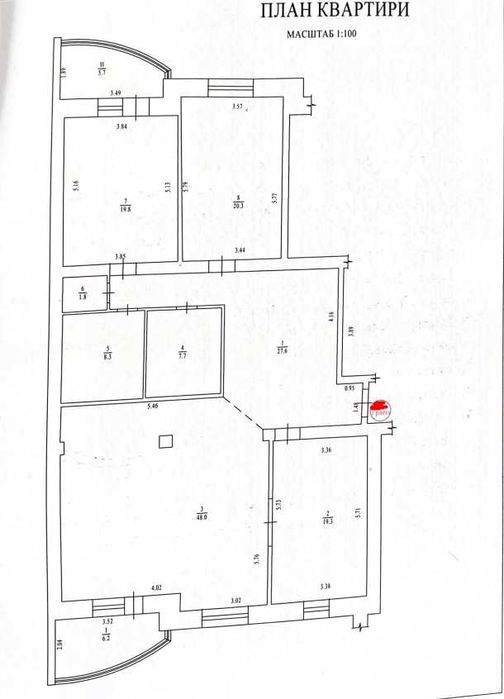
Загальна площа: 217.40 м²
Площа кухні: 19.30 м²
Тип стін: Цегляний
Клас житла: Еліт
Кількість кімнат: 4 кімнати
Планування: Роздільна
Cанвузол: 2 і більше
Опалення: Індивідуальне газове
Ремонт: Після будівельників
Меблювання: Ні
Комфорт: Балкон, лоджія, Тераса, Ліфт
Комунікації: Газ, Центральний водопровід, Електрика, Центральна каналізація, Вивіз відходів, Асфальтована дорога
Інфраструктура (до 500 метрів): Дитячий садок, Школа, Зупинка транспорту, Ринок, Магазин, кіоск, Супермаркет, ТРЦ, Парк, зелена зона, Дитячий майданчик, Аптека, Центр міста, Відділення пошти, Відділення банку, банкомат
Ландшафт (до 1 км.): Парк
Опис
Просто шикарна 4 кімнатна квартира в одному з найкращих будинків міста Полтава, в самому центрі. Поруч с Корпусним парком, стадіоном Ворксла, магазинами та навчальними закладами.
Загальна площа квартири - 218 м кв, 4 кімнати. Можна зробити перепланування на ваш розсуд.
Квартира дворівнева, з виходом на терасу. Поверх 8-9/9 поверхового будинку. Стеля - 3 метри.
Будинок цегляний, опалення - індивідуальне газове.
Двір закритого типу, є підземний паркінг.
У власності більше 3х років.
Запрошуємо на перегляд.
Загальна площа квартири - 218 м кв, 4 кімнати. Можна зробити перепланування на ваш розсуд.
Квартира дворівнева, з виходом на терасу. Поверх 8-9/9 поверхового будинку. Стеля - 3 метри.
Будинок цегляний, опалення - індивідуальне газове.
Двір закритого типу, є підземний паркінг.
У власності більше 3х років.
Запрошуємо на перегляд.
ID: 887571999
Зв’язатися з продавцем
xxx xxx xxx

