Бізнес
Продаж від забудовника
Без комісії
Відстань до найближчого міста: У місті
Поверховість: 2
Загальна площа: 149 м²
Кількість кімнат: 3
Площа ділянки: 2.03 соток
Тип будинку: Таунхаус
Рік побудови / здачі: На етапі будівництва
Тип стін: Цегляний
Зовнішнє утеплення стін: Пінопласт
Тип покрівлі: Металочерепиця
Cанвузол: 2 і більше
Опалення: Індивідуальне газове
Ремонт: Після будівельників
Меблювання: Ні
Побутова техніка: Без побутової техніки
Мультимедіа: Швидкісний інтернет, Wi-Fi
Комфорт: Відеоспостереження, Автоматичні ворота, Огорожа, Камін, Гараж, Охорона території, Тераса
Комунікації: Асфальтована дорога, Центральна каналізація, Електрика, Вивіз відходів, Газ, Центральний водопровід
Інфраструктура (до 500 метрів): Центр міста, Аптека, Дитячий садок, Дитячий майданчик, Відділення пошти, Ресторан, кафе, Школа, Супермаркет, ТРЦ, Зупинка транспорту
Ландшафт (до 1 км.): Ліс, Озеро, Парк, Річка
Опис
Зручна локація поруч ЖК Калинова Слобода, асфальтова дорога. Менше 1 км до Набережної ім. Стефаника та менше 2 км пішки до міського озера.
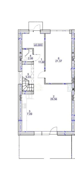
Особдивості планування:
- простора кухня-вітальня
- великий санвузол
- панорамні вікна
- балкон зі спальні.
Планування на стадії будівництва можна змінити.
В ціну вже ключено:
- штукатурка стін під маяки
- монолітні сходи на 2-ий поверх
- 6-тикамерні енергозберігаючі вікна
- вхідні двері
- комунікації міські
- лічильники на мережі
- утеплення фасаду будинку пінопластом 10 см
- встановлення балконних перил.
- гідроізоляція та утеплення фундаменту
- дренаж (лівньовка)
Фінансові умови:
Можливе розтермінування платежів, перший платіж від 30%, вартість при розтермінуванні НЕ змінюється
Здача в експлуатацію - кінець 2026 року.
Показ у зручний для Вас час. До зустрічі!
Зв’язатися з продавцем
xxx xxx xxx

