Бізнес
Продаж від забудовника
Відстань до найближчого міста: У місті
Поверховість: 2
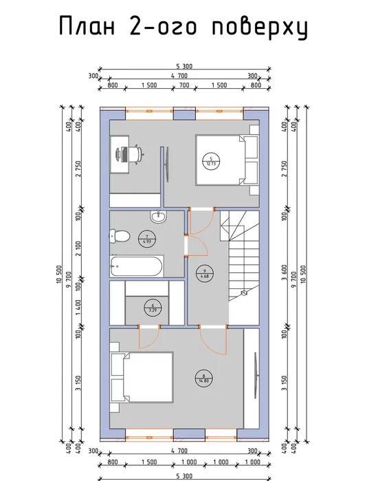
Загальна площа: 82 м²
Кількість кімнат: 4
Площа ділянки: 1.10 соток
Тип будинку: Таунхаус
Тип стін: Цегляний
Зовнішнє утеплення стін: Пінопласт
Тип покрівлі: Металочерепиця
Cанвузол: 2 і більше
Опалення: Індивідуальне газове
Ремонт: Після будівельників
Меблювання: Ні
Комфорт: Відеоспостереження, Огорожа, Тераса
Комунікації: Асфальтована дорога, Центральна каналізація, Електрика, Вивіз відходів, Газ, Центральний водопровід
Інфраструктура (до 500 метрів): Відділення банку, банкомат, Автовокзал, Кінотеатр, театр, Центр міста, Аптека, Лікарня, поліклініка, Дитячий садок, Парк, зелена зона, Дитячий майданчик, Відділення пошти, Залізнична станція, Ресторан, кафе, Школа, Магазин, кіоск, Супермаркет, ТРЦ, Зупинка транспорту
Ландшафт (до 1 км.): Ліс, Парк
Опис
Площа: 82 м² + мансардний поверх 35 м² у подарунок
Ділянка: від 1,1 сотки
Готовність:
• 1 черга — кінець вересня 2025
• 2 черга — IV квартал 2025
Можна заходити на ремонт
Планування:
• Кухня-вітальня
• 3–4 житлові кімнати (на вибір)
• Гардероб
• Робоча зона
• Кладова
• 2 санвузли
• Передпокій
• Мансарда 35 м² — лаунж, робоча зона, більярдна або горище
(висота 3,2–4 м, мансардне вікно, можливість бетонних сходів — 1500 у.о.)
Інфраструктура котеджного містечка:
• Закрита територія з автоматичними воротами
• Відеоспостереження, домофон
• Два паркомісця + гостьовий паркінг
• Спортивний майданчик, велопарковка
• Вуличні комірки
• Комунікації для генератора та зарядки електромобіля
Технічні характеристики:
• Стіни: керамоблок
• Перекриття: залізобетонні плити
• Сходи: залізобетонні
• Покрівля: металочерепиця, стропильно-балочне перекриття, гідро-паро бар’єр
• Утеплення: пінополістирол 100 мм + декоративне оздоблення
• Вікна: REHAU 70 з ламінацією black-braun, скриті петлі, ручки Rehau-secusstik, енергозберігаючі склопакети SOLAR (3 скла, 5 камер), теплий підставочний профіль
• Двері: броньовані з МДФ та склопакетом
• Підлога: чорнова стяжка
Комунікації:
• Електрика: 7–10 кВт, 3 фази, лічильник «день/ніч»
• Вода: централізоване водопостачання
• Каналізація: централізована + дощова
• Газ: заведено, лічильник
• Інтернет: оптоволокно (провайдер «Бест»)
Умови придбання:
• Повна оплата
• Розтермінування до 18 місяців
– Перший внесок — від 30%
– До 12 міс. — без переплат
– До 18 міс. — +3000 $
• Можливий обмін на авто або квартиру
• Працюємо з державними програмами
Зв’язатися з продавцем
xxx xxx xxx

