Перейти до основного вмісту
Чат
  • Укр
  • Рус

Повідомлення

Додати оголошення
Таунхаус (котедж) біля Львова 100 м2
Таунхаус (котедж) біля Львова 100 м2
Таунхаус (котедж) біля Львова 100 м2
РекламуватиПідняти

Бізнес

Без комісії

Готовий співпрацювати з ріелторами

Відстань до найближчого міста: до 15 км.

Поверховість: 2

Загальна площа: 100 м²

Кількість кімнат: 3

Площа ділянки: 1 соток

Тип будинку: Таунхаус

Рік побудови / здачі: На етапі будівництва

Тип стін: Шлакоблочний

Зовнішнє утеплення стін: Пінопласт

Тип покрівлі: Металочерепиця

Cанвузол: Роздільний

Опалення: Індивідуальне газове

Ремонт: Після будівельників

Меблювання: Ні

Комунікації: Асфальтована дорога, Центральна каналізація, Електрика, Вивіз відходів, Центральний водопровід

Інфраструктура (до 500 метрів): Аптека, Лікарня, поліклініка, Зупинка транспорту, Дитячий садок, Ринок, Дитячий майданчик, Відділення пошти, Ресторан, кафе, Школа, Магазин, кіоск, Супермаркет, ТРЦ

Ландшафт (до 1 км.): Ліс, Озеро, Річка

Інклюзивність: Вхід в рівень з вулицею

Опис

Котедж знаходиться в с. Ременів 14 км від м. Львова.

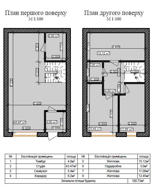
Площа котеджу - 99 м2
2 поверхи
На першому поверсі - прихожа, велика кухня-вітальня, санвузол
На другому поверсі - три спальні, гардероб або санвузол
Можливе перепланування згідно побажань власника

Хороша інфраструктура. Крамниці, піцерія, кафе, салони краси, школа, дит. садочок, поліклініка, мийка, тенісний корт, футбольний майданчик, озера, ліс, все - поруч.

Своя прибудинкова ділянка та паркомісце

Зовнішні стіни - пустотілий бетонний блок
Утеплення - пінополістирол 100 мм
Перекриття - залізобетонні плити
Перегородки згідно проекту
Фесад оздоблений декоративною штукатуркою
Вікна металопластикові з водовідливами
Вхідні двері - металеві
Дах - утеплений мінеральною ватою
Покриття даху - металочерепиця
Підведення до котеджу електрики та води
Лічильники електрики та води

Також можливе розтермінування при першому внеску від 50%
ID: 897161474

Зв’язатися з продавцем

Олександр

на OLX з лютий 2015 р.

Онлайн 24 жовтня 2025 р.

xxx xxx xxx

Опубліковано 24 жовтня 2025 р.

Таунхаус (котедж) біля Львова 100 м2

55 000 $

Місцезнаходження

Location

Ременів

Львівська область

Безкоштовний застосунок на твій телефон