Бізнес
Продаж від забудовника
Поверховість: 2
Загальна площа: 170.20 м²
Кількість кімнат: 4
Площа ділянки: 3.08 соток
Тип будинку: Таунхаус
Мультимедіа: Швидкісний інтернет, Wi-Fi
Інфраструктура (до 500 метрів): Ресторан, кафе
Опис
Таунхаус SL 7 у комплексі “Слов’янські” – з власною ділянкою
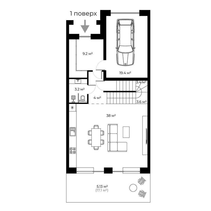
• Площа будинку: 170.2 м²
• Площа ділянки: 308 м²
• Кількість кімнат: 5
• Вартість м²: 1 455 $
• Повна вартість: 247 641 $
• Стан: будується
• Дата готовності: грудень 2025
• Розташування: с. Минай / перехрестя вул. Лапонога та Слов’янська
Переваги локації
• Престижне ближнє передмістя Ужгорода
• Пішки: “Сільпо” / кінотеатр “5 Елемент” / освітні студії / дитсадки / школи / фітнес-центри / медичні заклади
• Приватність заміського життя з усіма зручностями міста
Будівельні технології
• Монолітно-каркасна технологія / сейсмостійкість до 7 балів
• Червона керамічна цегла + утеплення / висока шумо- і теплоізоляція
• Індивідуальна розводка електрики та сантехніки входить у вартість
• Можливість адаптації інженерних систем під ваші потреби
Комфорт і безпека
• Власна зелена ділянка
• Гараж
Додатково
• Продаж напряму від забудовника GAZDA
• Без комісії / повний юридичний супровід
• Запис на перегляд – за телефоном у профілі
• Дивіться також інші об’єкти GAZDA в місті та передмісті
• Площа будинку: 170.2 м²
• Площа ділянки: 308 м²
• Кількість кімнат: 5
• Вартість м²: 1 455 $
• Повна вартість: 247 641 $
• Стан: будується
• Дата готовності: грудень 2025
• Розташування: с. Минай / перехрестя вул. Лапонога та Слов’янська
Переваги локації
• Престижне ближнє передмістя Ужгорода
• Пішки: “Сільпо” / кінотеатр “5 Елемент” / освітні студії / дитсадки / школи / фітнес-центри / медичні заклади
• Приватність заміського життя з усіма зручностями міста
Будівельні технології
• Монолітно-каркасна технологія / сейсмостійкість до 7 балів
• Червона керамічна цегла + утеплення / висока шумо- і теплоізоляція
• Індивідуальна розводка електрики та сантехніки входить у вартість
• Можливість адаптації інженерних систем під ваші потреби
Комфорт і безпека
• Власна зелена ділянка
• Гараж
Додатково
• Продаж напряму від забудовника GAZDA
• Без комісії / повний юридичний супровід
• Запис на перегляд – за телефоном у профілі
• Дивіться також інші об’єкти GAZDA в місті та передмісті
ID: 900426622
Зв’язатися з продавцем
xxx xxx xxx

