Бізнес
Без комісії
Відстань до найближчого міста: У місті
Розташування: Окреме приміщення
Тип об'єкта: Інше
Поверх: 1
Поверховість: 1
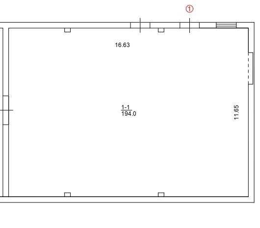
Загальна площа: 194 м²
Рік побудови / здачі: 1990 - 2000
Опалення: Інше
Комфорт: Гостьовий паркінг
Меблювання: Ні
Побутова техніка: Без побутової техніки
Тип: Склад
Комунікації: Асфальтована дорога, Електрика, Вивіз відходів, Центральний водопровід
Інфраструктура (до 500 метрів): Відділення банку, банкомат, Житловий масив, Офіси, бізнес центр, Стоянка, парковка, гараж, Відділення пошти, Ресторан, кафе, бар, Навчальні заклади
Опис
Здам в оренду сухий капітальний склад площею 194 м², розташований на території охоронюваного бізнес-центру Dominion Business Park. Локація — 10 хвилин пішки від площі Космонавтів, Севастопольської площі та Центрального радіоринку.
Вартість:
Орендна ставка: 230 грн/м² з ПДВ
Експлуатаційні витрати: 59 грн/м²
Електроенергія: за лічильником
При оренді складу обов’язковим є додатково орендувати офісне приміщення.
Є інші варіанти складів, офісів та приміщень різних площ — усю інформацію надам за телефоном.
Інфраструктура бізнес-центру
На території Dominion Business Park розташовано:
відділення Нової Пошти №226;
банкомат та термінал ПриватБанку;
кафе та столова;
8 провайдерів інтернету та телефонії;
наземний паркінг для автомобілів, електромобілів і велосипедів;
паркомісця;
безкоштовна розвозка співробітників до метро Шулявська та Деміївська.
Зручне розташування
Поруч: АТБ, оптова продуктова база, відділення пошти, зупинка громадського транспорту.
Відстань до центру — 7 км, до Великої Кільцевої дороги — 5 км.
Вартість:
Орендна ставка: 230 грн/м² з ПДВ
Експлуатаційні витрати: 59 грн/м²
Електроенергія: за лічильником
При оренді складу обов’язковим є додатково орендувати офісне приміщення.
Є інші варіанти складів, офісів та приміщень різних площ — усю інформацію надам за телефоном.
Інфраструктура бізнес-центру
На території Dominion Business Park розташовано:
відділення Нової Пошти №226;
банкомат та термінал ПриватБанку;
кафе та столова;
8 провайдерів інтернету та телефонії;
наземний паркінг для автомобілів, електромобілів і велосипедів;
паркомісця;
безкоштовна розвозка співробітників до метро Шулявська та Деміївська.
Зручне розташування
Поруч: АТБ, оптова продуктова база, відділення пошти, зупинка громадського транспорту.
Відстань до центру — 7 км, до Великої Кільцевої дороги — 5 км.
ID: 909714959
Зв’язатися з продавцем
xxx xxx xxx

