Бізнес
Продаж від забудовника
Без комісії
Готовий співпрацювати з ріелторами
Відстань до найближчого міста: до 15 км.
Поверховість: 1
Загальна площа: 166 м²
Кількість кімнат: 4
Площа ділянки: 12 соток
Тип будинку: Будинок
Рік побудови / здачі: Після 2015
Тип стін: Монолітний
Зовнішнє утеплення стін: Мінеральна вата
Тип покрівлі: Інше
Cанвузол: 2 і більше
Опалення: Тепловий насос
Ремонт: Під чистову обробку
Меблювання: Ні
Комунікації: Асфальтована дорога, Електрика, Вивіз відходів, Каналізація септик, Свердловина
Ландшафт (до 1 км.): Озеро
Опис
Продається сучасний одноповерховий будинок 166 м² з вентильованим фасадом утеплений мінеральною ватою. Плоский дах вкритий мембраною. Висота стелі 3.20 Перекриття моноліт. Автоматичні ворота Опалення ТЕПЛОВИЙ НАСОС ! В с.Романків Обухівського району в 20 хвилинах від м.Київ
⸻
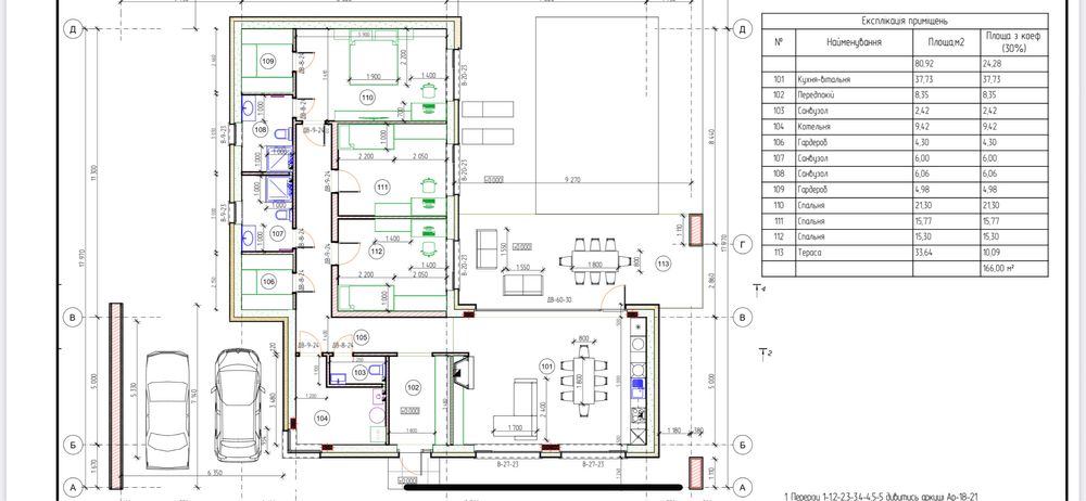
Ділянка 0.12 га
Загальна площа: будинку 166 м² Поверхів: 1
Матеріал фасаду : вентильований фасад
Свердловина: 80 метрів
Септик: 6 кубів
Автоматичний полив газону
Простора тераса – 33,64 м²
⸻
Планування:
•Кухня-вітальня – 37,73 м²
• Передпокій – 8,35 м²
• Котельня – 9,42 м²
• 3 санвузли – 2,42 м², 6,00 м², 6,06 м²
• 2 гардеробні – 4,30 м² і 4,98 м²
• 3 спальні – 21,30 м², 15,77 м², 15,30 м
• Тераса – 33,64 м²
⸻
Переваги будинку:
• Енергоефективний вентильований фасад
• Автополив газону — не витрачаєте час на догляд
• Глибока свердловина (80 м) — чиста вода в будь-яку пору року
• Простора кухня-вітальня — ідеальна для зустрічей і сімейних вечорів
• Раціональне планування з великою кількістю зручностей. Будинок у стані під чистове оздоблення – чудова можливість зробити ремонт саме під ваш смак і потреби.
Всі ключові комунікації вже підведені!
Переваги:
• Велика площа
• Готова документація
• Вільне планування інтер’єру
• Тиха й затишна локація
• Якісна основа для стильного житла
⸻
Ділянка 0.12 га
Загальна площа: будинку 166 м² Поверхів: 1
Матеріал фасаду : вентильований фасад
Свердловина: 80 метрів
Септик: 6 кубів
Автоматичний полив газону
Простора тераса – 33,64 м²
⸻
Планування:
•Кухня-вітальня – 37,73 м²
• Передпокій – 8,35 м²
• Котельня – 9,42 м²
• 3 санвузли – 2,42 м², 6,00 м², 6,06 м²
• 2 гардеробні – 4,30 м² і 4,98 м²
• 3 спальні – 21,30 м², 15,77 м², 15,30 м
• Тераса – 33,64 м²
⸻
Переваги будинку:
• Енергоефективний вентильований фасад
• Автополив газону — не витрачаєте час на догляд
• Глибока свердловина (80 м) — чиста вода в будь-яку пору року
• Простора кухня-вітальня — ідеальна для зустрічей і сімейних вечорів
• Раціональне планування з великою кількістю зручностей. Будинок у стані під чистове оздоблення – чудова можливість зробити ремонт саме під ваш смак і потреби.
Всі ключові комунікації вже підведені!
Переваги:
• Велика площа
• Готова документація
• Вільне планування інтер’єру
• Тиха й затишна локація
• Якісна основа для стильного житла
ID: 894137826
Зв’язатися з продавцем
xxx xxx xxx
Опубліковано 07 лютого 2026 р.
Сучазний будинок в с. Романків
330 000 $
Місцезнаходження
Романків
Київська область
