Бізнес
Відстань до найближчого міста: У місті
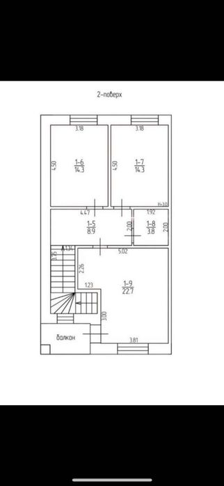
Поверховість: 2
Загальна площа: 140 м²
Кількість кімнат: 4
Площа ділянки: 3.60 соток
Тип будинку: Дуплекс
Рік побудови / здачі: Після 2015
Тип стін: Цегляний
Тип покрівлі: Металочерепиця
Cанвузол: 2 і більше
Опалення: Індивідуальне газове
Ремонт: Після будівельників
Меблювання: Ні
Опис
Пропонується до продажу будинок дуплекс з двох повністю автономних частин, кожна з окремим входом та власною адресою.
Локація провулок Санаторний, поруч Парк Перемоги.
Загальна площа будинку 138 кв м
Площа земельної ділянки 4.6 сотки
Будинок введений в експлуатацію, готовий до завершення ремонту під ваш смак.
Технічні характеристики
Стіни газоблок 400 плюс облицювальна цегла магма діабаз
Дах металочерепиця
Перекриття залізобетонні
Фундамент бетонні блоки з монолітним поясом
Стан
Зроблена машинна штукатурка
Проведена електрика
Встановлені трикамерні металопластикові вікна з якісною фурнітурою
Встановлені автоматичні ворота
Комунікації
Електрика 16 кВт
Газ
Септик
Свердловина
Центральне водопостачання
Індивідуальне газове опалення
Планування
4 повноцінні кімнати
Зручне та продумане планування для сімейного проживання
Інфраструктура до 500 метрів
Парк та зелена зона
Дитячий майданчик
Магазини та кіоски
Зупинка громадського транспорту
Ідеальний варіант для тих, хто шукає сучасний будинок у спокійному районі з міською інфраструктурою та близькістю до парку.
Телефонуйте для детальної інформації та перегляду.
Локація провулок Санаторний, поруч Парк Перемоги.
Загальна площа будинку 138 кв м
Площа земельної ділянки 4.6 сотки
Будинок введений в експлуатацію, готовий до завершення ремонту під ваш смак.
Технічні характеристики
Стіни газоблок 400 плюс облицювальна цегла магма діабаз
Дах металочерепиця
Перекриття залізобетонні
Фундамент бетонні блоки з монолітним поясом
Стан
Зроблена машинна штукатурка
Проведена електрика
Встановлені трикамерні металопластикові вікна з якісною фурнітурою
Встановлені автоматичні ворота
Комунікації
Електрика 16 кВт
Газ
Септик
Свердловина
Центральне водопостачання
Індивідуальне газове опалення
Планування
4 повноцінні кімнати
Зручне та продумане планування для сімейного проживання
Інфраструктура до 500 метрів
Парк та зелена зона
Дитячий майданчик
Магазини та кіоски
Зупинка громадського транспорту
Ідеальний варіант для тих, хто шукає сучасний будинок у спокійному районі з міською інфраструктурою та близькістю до парку.
Телефонуйте для детальної інформації та перегляду.
ID: 911179469
Зв’язатися з продавцем
xxx xxx xxx
Опубліковано 07 лютого 2026 р.
Сучасний дуплекс біля Парку Перемоги окрема адреса та всі комунікації
110 000 $
Місцезнаходження
Кропивницький, Подільський
Кіровоградська область