Бізнес
Вид об'єкта: Новобудова
Без комісії
Підходить під вимоги єОселя
Назва ЖК: ЖК Деснянский
Поверх: 10
Поверховість: 25
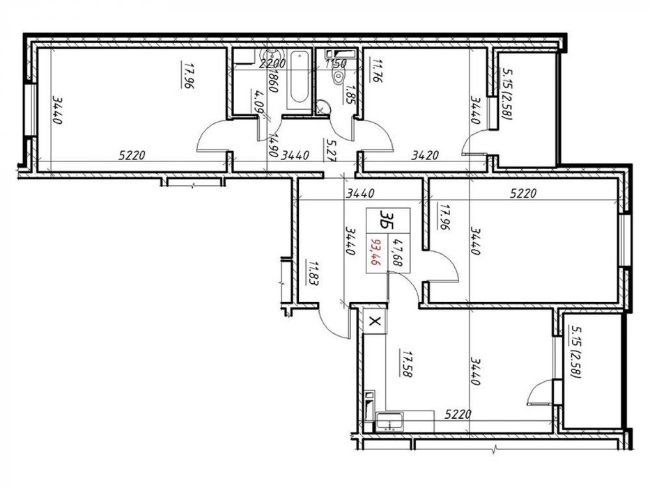
Загальна площа: 93.46 м²
Площа кухні: 18 м²
Кількість кімнат: 3 кімнати
Планування: Роздільна
Cанвузол: Роздільний
Опалення: Власна котельня
Ремонт: Євроремонт
Опис
Останні 3к квартири під єОселю 3% та 7% в найближчи 2 роки!
Допомога у швидкому оформленні!
Простора 3к квартира з РЕМОНТОМ та великою кухнею 18м2!
ЖК Деснянський, будинок 1, вул. Електротехнічна, 43, Троєщина, Закревського
Житлова 48
Кухня 18
Поверх 10
Житловий комплекс «Деснянський» складається з 3-х багатоповерхових будинків (25 поверхів), об'єднаних спільною прибудинковою територією та належне облаштування: квіткові клумби, зелені газони, зони відпочинку для дорослих, дитячі та спортивні майданчики. Будівництво виконується за вдосконаленими технологіями панельного будівництва, які передбачають сучасне фасадне утеплення будинків та поліпшене планування квартир.Територіально, це східна межа житлового масиву Троєщина – цікава й перспективна локація неподалік від найбільшого у Києві озера Алмазне, улюбленого місця відпочинку на природі жителів навколишніх кварталів. Тобто, з одного боку ЖК розташований житловий масив з розвинутою інфраструктурою, а з іншого – фактично рекреаційна зона з місцями для відпочинку на природі.В межах пішої доступності від вашого майбутнього житла розташовано достатньо торгівельних, освітніх, медичних та освітніх установ. В 5-10-ти хвилинах ходу від ЖК в наявності численні магазини та маркети, речові та продуктові ринки та ЦОП «METRO». Автовласники оцінять зручну для них наявність неподалік від дому в потрібній кількості різноманітних СТО та автомийку. Поруч з ЖК «Деснянський» розташовано районний діагностичний центр та поліклініка, є два відділенняНової Пошти, різноманітні установи. Родинам з дітьми важливо знати, що в пішій доступності є кілька загальноосвітніх шкіл (№ 238, 242, 248, 277, 282), а також коледж та гімназія. Також неподалік від ЖК знаходиться Молодіжний парк площею майже 10 га, з атракціонами для дітей та алеями для відпочинку та неспішних прогулянок серед висаджених тут лип, кленів та берез.
Допомога у швидкому оформленні!
Простора 3к квартира з РЕМОНТОМ та великою кухнею 18м2!
ЖК Деснянський, будинок 1, вул. Електротехнічна, 43, Троєщина, Закревського
Житлова 48
Кухня 18
Поверх 10
Житловий комплекс «Деснянський» складається з 3-х багатоповерхових будинків (25 поверхів), об'єднаних спільною прибудинковою територією та належне облаштування: квіткові клумби, зелені газони, зони відпочинку для дорослих, дитячі та спортивні майданчики. Будівництво виконується за вдосконаленими технологіями панельного будівництва, які передбачають сучасне фасадне утеплення будинків та поліпшене планування квартир.Територіально, це східна межа житлового масиву Троєщина – цікава й перспективна локація неподалік від найбільшого у Києві озера Алмазне, улюбленого місця відпочинку на природі жителів навколишніх кварталів. Тобто, з одного боку ЖК розташований житловий масив з розвинутою інфраструктурою, а з іншого – фактично рекреаційна зона з місцями для відпочинку на природі.В межах пішої доступності від вашого майбутнього житла розташовано достатньо торгівельних, освітніх, медичних та освітніх установ. В 5-10-ти хвилинах ходу від ЖК в наявності численні магазини та маркети, речові та продуктові ринки та ЦОП «METRO». Автовласники оцінять зручну для них наявність неподалік від дому в потрібній кількості різноманітних СТО та автомийку. Поруч з ЖК «Деснянський» розташовано районний діагностичний центр та поліклініка, є два відділенняНової Пошти, різноманітні установи. Родинам з дітьми важливо знати, що в пішій доступності є кілька загальноосвітніх шкіл (№ 238, 242, 248, 277, 282), а також коледж та гімназія. Також неподалік від ЖК знаходиться Молодіжний парк площею майже 10 га, з атракціонами для дітей та алеями для відпочинку та неспішних прогулянок серед висаджених тут лип, кленів та берез.
ID: 865821281
Зв’язатися з продавцем
xxx xxx xxx
Опубліковано 21 грудня 2025 р.
РЕМОНТ! ЄОСЕЛЯ 3%та7%! 3к-94м2 Поверх 10 ЖК Деснянський, Закревського
78 900 $
Місцезнаходження
Київ, Деснянський
Київська область