Бізнес
Продаж від забудовника
Без комісії
Поверховість: 2
Загальна площа: 130.60 м²
Кількість кімнат: 4
Площа ділянки: 3.26 соток
Тип будинку: Таунхаус
Рік побудови / здачі: Після 2015
Тип стін: Цегляний
Зовнішнє утеплення стін: Пінопласт
Тип покрівлі: Металочерепиця
Cанвузол: 2 і більше
Опалення: Індивідуальне газове
Ремонт: Після будівельників
Меблювання: Ні
Побутова техніка: Без побутової техніки
Мультимедіа: Кабельне, цифрове ТБ, Wi-Fi
Комфорт: Балкон, Тераса
Комунікації: Асфальтована дорога, Центральна каналізація, Електрика, Вивіз відходів, Газ, Центральний водопровід
Інфраструктура (до 500 метрів): Аптека, Дитячий садок, Дитячий майданчик, Магазин, кіоск, Зупинка транспорту
Ландшафт (до 1 км.): Ліс, Гори, Річка
Опис
Таунхаус з видом на гори в Івано-Франківську
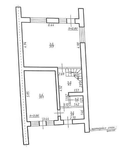
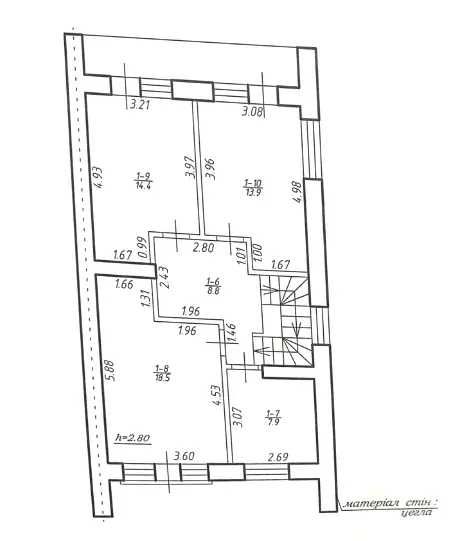
Пропонується просторий двоповерховий таунхаус загальною площею 130,6 м (житлова 66,9 м).
1 поверх 67,1 м: велика кухня-студія 31,9 м, простора вітальня замість гаража, санвузол, вихід у двір.
2 поверх 63,5 м: три комфортні спальні, балкон із краєвидом на Вовчинецькі гори, санвузол.
Висота стель: 2,8 м (1 поверх), 2,7-2,75 м (2 поверх).
На подвірї легко розміщуються 2 автомобілі.
Панорамний вид на гори, тиха й затишна локація.
Усі комунікації підключені можна розпочинати ремонт одразу.
Інфраструктура поруч:
ТЦ «Велес», ТЦ «Метро»
школа, дитячий садок
зупинка громадського транспорту
Стан без ремонту, що дозволяє втілити власний дизайн та планування.
Чудовий варіант для тих, хто цінує простір, спокій та гарні краєвиди.
Пропонується просторий двоповерховий таунхаус загальною площею 130,6 м (житлова 66,9 м).
1 поверх 67,1 м: велика кухня-студія 31,9 м, простора вітальня замість гаража, санвузол, вихід у двір.
2 поверх 63,5 м: три комфортні спальні, балкон із краєвидом на Вовчинецькі гори, санвузол.
Висота стель: 2,8 м (1 поверх), 2,7-2,75 м (2 поверх).
На подвірї легко розміщуються 2 автомобілі.
Панорамний вид на гори, тиха й затишна локація.
Усі комунікації підключені можна розпочинати ремонт одразу.
Інфраструктура поруч:
ТЦ «Велес», ТЦ «Метро»
школа, дитячий садок
зупинка громадського транспорту
Стан без ремонту, що дозволяє втілити власний дизайн та планування.
Чудовий варіант для тих, хто цінує простір, спокій та гарні краєвиди.
ID: 901547103
Зв’язатися з продавцем
xxx xxx xxx

