Бізнес
Без комісії
Відстань до найближчого міста: У місті
Поверховість: 2
Загальна площа: 96 м²
Кількість кімнат: 2
Площа ділянки: 0.50 соток
Тип будинку: Таунхаус
Тип стін: Цегляний
Зовнішнє утеплення стін: Мінеральна вата
Тип покрівлі: Металочерепиця
Cанвузол: 2 і більше
Опалення: Індивідуальне газове
Ремонт: Під чистову обробку
Меблювання: Ні
Комфорт: Балкон, Огорожа, Охорона території, Тераса
Комунікації: Асфальтована дорога, Центральна каналізація, Електрика, Газ, Центральний водопровід
Інфраструктура (до 500 метрів): Дитячий садок, Парк, зелена зона, Школа, Магазин, кіоск, Зупинка транспорту
Ландшафт (до 1 км.): Ліс, Річка
Опис
Продається стильний та комфортний таунхаус площею 96 м² у престижному та зеленому районі Дахнівка.
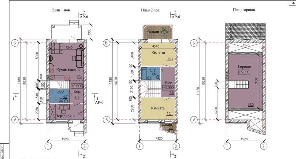
Планування:
1 поверх: простора кухня-їдальня — ідеальна для затишних вечорів з родиною або друзями.
2 поверх: 2 окремі житлові кімнати — для спокою, сну та приватності. З кожної кімнати вихід на балкон.
Третій поверх при бажанні також можна використати як житлову площу.
Санвузли на обох поверхах — максимальний комфорт для всієї родини.
Газове опалення — зручно, економно та тепло у будь-яку пору року.
Локація:
Екологічно чистий район Дахнівка.
Поруч річка Дніпро, піщані пляжі та ліс — ідеально для ранкових пробіжок, прогулянок з дітьми чи відпочинку на природі.
Ідеально підійде для молодої сім’ї та людей, які хочуть жити поряд із містом, але в гармонії з природою.
Телефонуйте вже зараз, щоб домовитись про перегляд!
Вигідна ціна - 800$ за м2.
Покупець комісію не сплачує.
Планування:
1 поверх: простора кухня-їдальня — ідеальна для затишних вечорів з родиною або друзями.
2 поверх: 2 окремі житлові кімнати — для спокою, сну та приватності. З кожної кімнати вихід на балкон.
Третій поверх при бажанні також можна використати як житлову площу.
Санвузли на обох поверхах — максимальний комфорт для всієї родини.
Газове опалення — зручно, економно та тепло у будь-яку пору року.
Локація:
Екологічно чистий район Дахнівка.
Поруч річка Дніпро, піщані пляжі та ліс — ідеально для ранкових пробіжок, прогулянок з дітьми чи відпочинку на природі.
Ідеально підійде для молодої сім’ї та людей, які хочуть жити поряд із містом, але в гармонії з природою.
Телефонуйте вже зараз, щоб домовитись про перегляд!
Вигідна ціна - 800$ за м2.
Покупець комісію не сплачує.
ID: 898905619
Зв’язатися з продавцем
xxx xxx xxx
