Бізнес
Вид об'єкта: Новобудова
Назва ЖК: ЖК Riel City
Поверх: 7
Поверховість: 12
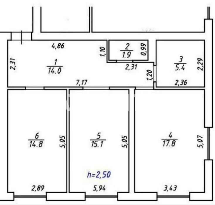
Загальна площа: 68 м²
Площа кухні: 15 м²
Тип стін: Монолітний
Кількість кімнат: 2 кімнати
Планування: Роздільна
Cанвузол: Роздільний
Опалення: Індивідуальне газове
Меблювання: Ні
Комфорт: Підземний паркінг
Опис
Простір, у якому можна створити свій власний дім
Продається двокімнатна квартира у сучасному житловому комплексі Riel Citi — місці, де комфорт поєднується із зручністю міського життя.
Квартира у нульовому циклі, що дозволяє реалізувати будь-який дизайн та планування під свій стиль і потреби.
Локація: район із розвиненою інфраструктурою:
поруч школа, парк, супермаркети, аптеки, ТРЦ, дитячі майданчики та громадський транспорт.
До центру міста — зручна транспортна розв’язка.
Про будинок:
• Будинок зданий і заселений
• Працює ліфт, підключені всі комунікації
• Власна котельня — стабільне та економне опалення
• Є підземний паркінг
Ідеальний варіант для тих, хто цінує новий дім без компромісів, хоче облаштувати простір на свій смак і насолоджуватись комфортом сучасного комплексу.
Код обʼєкта 382641
Телефонуйте для перегляду квартири.
Код об'єкта: k107.7`382641`253. АН "Атланта".
Більше інформації та світлин за посиланням: https://www.atlanta.ua/uk/lvov/object/2komnatnye/382641
Продається двокімнатна квартира у сучасному житловому комплексі Riel Citi — місці, де комфорт поєднується із зручністю міського життя.
Квартира у нульовому циклі, що дозволяє реалізувати будь-який дизайн та планування під свій стиль і потреби.
Локація: район із розвиненою інфраструктурою:
поруч школа, парк, супермаркети, аптеки, ТРЦ, дитячі майданчики та громадський транспорт.
До центру міста — зручна транспортна розв’язка.
Про будинок:
• Будинок зданий і заселений
• Працює ліфт, підключені всі комунікації
• Власна котельня — стабільне та економне опалення
• Є підземний паркінг
Ідеальний варіант для тих, хто цінує новий дім без компромісів, хоче облаштувати простір на свій смак і насолоджуватись комфортом сучасного комплексу.
Код обʼєкта 382641
Телефонуйте для перегляду квартири.
Код об'єкта: k107.7`382641`253. АН "Атланта".
Більше інформації та світлин за посиланням: https://www.atlanta.ua/uk/lvov/object/2komnatnye/382641
ID: 907120854
Зв’язатися з продавцем
xxx xxx xxx

