Бізнес
Поверх: 1
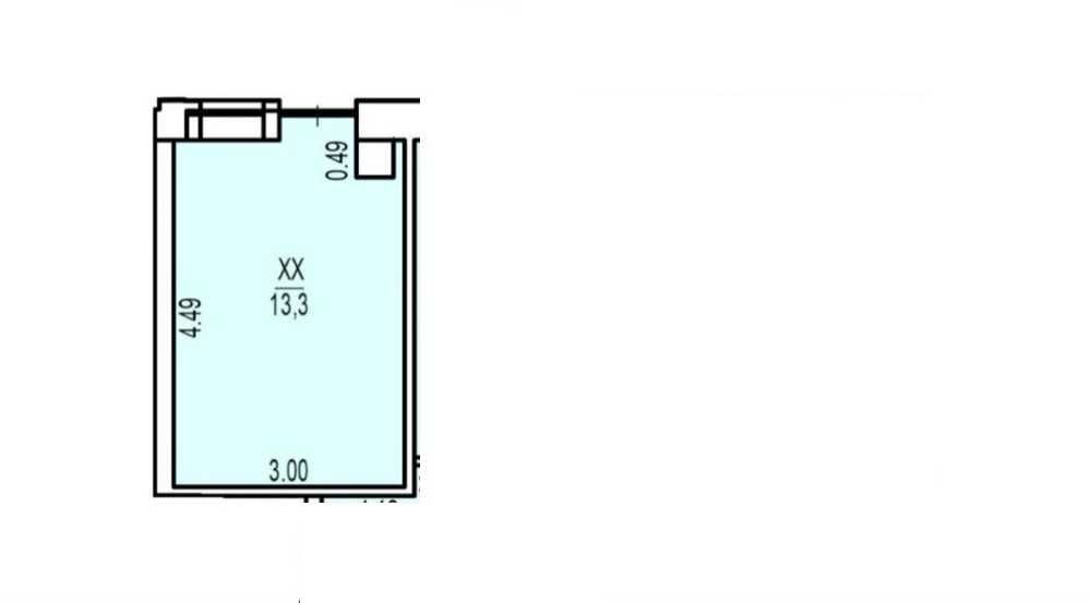
Загальна площа: 13 м²
Опис
Ключі в АН.
Продаж комерційного приміщення в новому будинку бізнес класу .
ЖК Оскар, розташований поруч із жвавою центральною частиною міста.
Проте огорнутий затишними алеями дерев . Перший поверх . Окремий вхід .
Загальна площа 13 кв м .
Технологія будівництва - монолітно-каркасна, утеплене мінеральною ватою, індивідуальне опалення . Всі комунікацї заведені.
Вартість 23 000$ .
Комісія АН 1400 у.е.
Продаж комерційного приміщення в новому будинку бізнес класу .
ЖК Оскар, розташований поруч із жвавою центральною частиною міста.
Проте огорнутий затишними алеями дерев . Перший поверх . Окремий вхід .
Загальна площа 13 кв м .
Технологія будівництва - монолітно-каркасна, утеплене мінеральною ватою, індивідуальне опалення . Всі комунікацї заведені.
Вартість 23 000$ .
Комісія АН 1400 у.е.
ID: 902893130
Зв’язатися з продавцем
xxx xxx xxx
