Бізнес
Продаж від забудовника
Без комісії
Готовий співпрацювати з ріелторами
Відстань до найближчого міста: У місті
Поверховість: 2
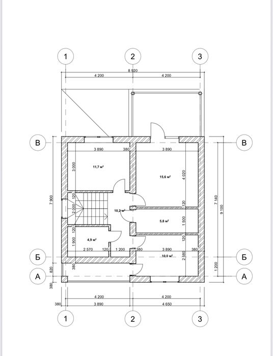
Загальна площа: 120 м²
Кількість кімнат: 4
Площа ділянки: 4 соток
Тип будинку: Будинок
Рік побудови / здачі: На етапі будівництва
Тип стін: Цегляний
Зовнішнє утеплення стін: Мінеральна вата
Тип покрівлі: Черепиця (керамічна)
Cанвузол: 2 і більше
Опалення: Індивідуальне газове
Ремонт: Після будівельників
Меблювання: Ні
Побутова техніка: Без побутової техніки
Мультимедіа: Без мультимедіа, Wi-Fi
Комфорт: Автоматичні ворота, Балкон, Огорожа, Сад, город, Тераса
Комунікації: Асфальтована дорога, Центральна каналізація, Електрика, Вивіз відходів, Газ, Центральний водопровід
Інфраструктура (до 500 метрів): Відділення банку, банкомат, Дитячий садок, Зупинка транспорту, Парк, зелена зона, Дитячий майданчик, Відділення пошти, Бювет, Ресторан, кафе, Школа, Магазин, кіоск, Супермаркет, ТРЦ
Ландшафт (до 1 км.): Ліс, Озеро, Парк, Річка
Інклюзивність: Вхід в рівень з вулицею, Широкі двері в під'їзді (від 0,9 м.)
Опис
Пропонуємо до вашої уваги будинок у приватному секторі Ірпеня, серед багаторічних дерев. Тиха непроїзна вулиця, свіже повітря та спів пташок створюють відчуття заміського відпочинку, залишаючись поруч із міською інфраструктурою.
Локація:
Центральний парк та Парк Незнайки – 5 хвилин пішки
Школа №17, дитячі садки – поруч
Супермаркети Сільпо, Новус, АТБ, Фора, аптеки, магазини та салони – у кроковій доступності
Зручний виїзд до Києва
Будівництво та благоустрій:
Монолітний утеплений фундамент
Стіни з керамоблоку 380 мм + утеплення мінеральною ватою 100 мм
Теплий дах із металочерепиці
Енергозберігаючі вікна з гартованим склом
Фасад облицьований плиткою з декоративною підсвіткою
Територія вимощена бруківкою, є тераса та озеленення
Паркан з металопрофілю
Комунікації:
Електрика – 8 кВт
Централізоване водопостачання та каналізація
Газ – індивідуальне опалення
Переваги:
Будинок готовий до внутрішніх робіт — можна реалізувати власний дизайн і планування
Ідеальний варіант для сім’ї, яка цінує комфорт, тишу та життя серед природи
Запрошуємо на перегляд у зручний для вас час!
Зв’язатися з продавцем
xxx xxx xxx
