Бізнес
Продаж від забудовника
Готовий співпрацювати з ріелторами
Поверховість: 1
Загальна площа: 89.15 м²
Кількість кімнат: 3
Площа ділянки: 3.80 соток
Тип будинку: Дуплекс
Рік побудови / здачі: Після 2015
Тип стін: Цегляний
Зовнішнє утеплення стін: Мінеральна вата
Тип покрівлі: Металочерепиця
Cанвузол: Роздільний
Опалення: Індивідуальне газове
Ремонт: Після будівельників
Меблювання: Ні
Опис
Одноповерховий дуплекс у Гостомелі. Закрите котеджне містечко
В продажу сучасний одноповерховий дуплекс у закритому котеджному містечку в затишній локації Гостомеля. Перші мешканці вже розпочали ремонти — приєднуйтесь до комфортного життя поруч із природою!
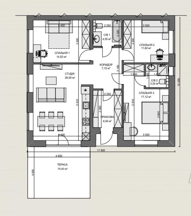
Площа будинку: 89.15 м²
Планування: кухня-вітальня, 3 окремі кімнати, санвузол, ванна кімната
Матеріали та конструкція:
Стіни: повнотіла цегла 380 мм (зовнішні), перегородки з цегли 120 мм
Вікна: 6-камерний профіль з 2-камерним склопакетом
Фасад: утеплення пінопластом 100 мм + декоративне оздоблення «баранчик» + фарбування
Комунікації:
Вода та каналізація — централізовані
Опалення — індивідуальне газове
Електрика — 7 кВт
Виконані роботи:
Заведені вода, електрика, газ і каналізація
Лазерна стяжка підлоги
Цементно-піщана штукатурка стін
Тиха й комфортна локація з гарним під’їздом, все необхідне поруч.
Ідеальний варіант для сім’ї — просторий, енергоефективний і в екологічно чистому місці!
Дзвоніть — відповімо на всі питання та організуємо перегляд!
Якщо потрібно — можу адаптувати оголошення до коротшої форми або додати ціну, фото, геолокацію.
В продажу сучасний одноповерховий дуплекс у закритому котеджному містечку в затишній локації Гостомеля. Перші мешканці вже розпочали ремонти — приєднуйтесь до комфортного життя поруч із природою!
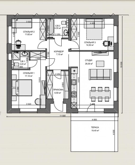
Площа будинку: 89.15 м²
Планування: кухня-вітальня, 3 окремі кімнати, санвузол, ванна кімната
Матеріали та конструкція:
Стіни: повнотіла цегла 380 мм (зовнішні), перегородки з цегли 120 мм
Вікна: 6-камерний профіль з 2-камерним склопакетом
Фасад: утеплення пінопластом 100 мм + декоративне оздоблення «баранчик» + фарбування
Комунікації:
Вода та каналізація — централізовані
Опалення — індивідуальне газове
Електрика — 7 кВт
Виконані роботи:
Заведені вода, електрика, газ і каналізація
Лазерна стяжка підлоги
Цементно-піщана штукатурка стін
Тиха й комфортна локація з гарним під’їздом, все необхідне поруч.
Ідеальний варіант для сім’ї — просторий, енергоефективний і в екологічно чистому місці!
Дзвоніть — відповімо на всі питання та організуємо перегляд!
Якщо потрібно — можу адаптувати оголошення до коротшої форми або додати ціну, фото, геолокацію.
ID: 893501181
Зв’язатися з продавцем
xxx xxx xxx
Опубліковано 09 жовтня 2025 р.
Продаж одноповерхового дуплексу в Гостомелі
71 320 $
Місцезнаходження
Гостомель
Київська область