Бізнес
Вид об'єкта: Новобудова
Без комісії
Готовий співпрацювати з ріелторами
Тип будинку: Житловий фонд 2011-2020-і
Поверх: 3
Поверховість: 3
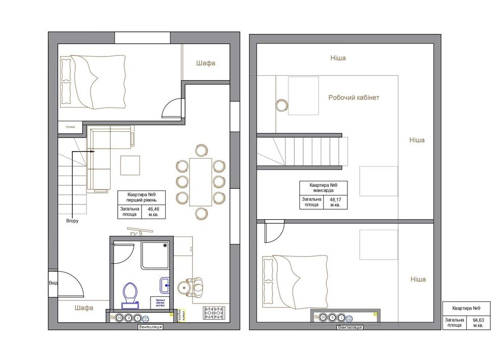
Загальна площа: 70 м²
Площа кухні: 8 м²
Тип стін: Газоблок
Кількість кімнат: 2 кімнати
Планування: Студія
Мультимедіа: Швидкісний інтернет
Опис
Пропонуємо продаж квартир у будинку клубного типу "My White House". Будинок розташований між озером та парковими зонами з дитячими майданчиками, неподалік (5 хв. пішки) школа, дитячий садок, магазини (Фора, Роси).
Ми можемо запропонувати Вам різні варіанти апартаментів дворівневих пентхаусів. Квартири з документами та готові для купівлі-продажу. В будинку всього одинадцять квартир така мала кількість є безспірною перевагою для придбання даного житла.
"My White House" - це елітний, малоквартирний житловий будинок клубного типу, збудований по ексклюзивному проекту в самому серці міста Миронівка, для вузького кола жильців, відповідного соціального класу.
Що таке клубний будинок – насамперед має незвичайну зовнішність, кожна його деталь підкреслює стриманість, та в той самий час розкіш. Фасад будинку прикрашено фактурними елементами. Пілястри, молдінги, карнизи надають будинку англійської вишуканості. Територія будинку має огорожу, є можливість придбання паркінг місця. Міжповерхові коридори мають площу 22 м.кв. на чотири квартири, що додають додаткову площу для використання. Є можливість придбання дворівневого пентхаусу з зоною для каміна. В будинок заведено Інтернет. Дах виконаний з сталевої кровельної конструкції фінської компанії Ruukki, мансардні вікна Roto, енергозберігаючі двокамерні вікна Steko з декоративним шпросом, стіни з цегли та пінобетону, утеплені пінопластом 100 мм.
Ми можемо запропонувати Вам різні варіанти апартаментів дворівневих пентхаусів. Квартири з документами та готові для купівлі-продажу. В будинку всього одинадцять квартир така мала кількість є безспірною перевагою для придбання даного житла.
"My White House" - це елітний, малоквартирний житловий будинок клубного типу, збудований по ексклюзивному проекту в самому серці міста Миронівка, для вузького кола жильців, відповідного соціального класу.
Що таке клубний будинок – насамперед має незвичайну зовнішність, кожна його деталь підкреслює стриманість, та в той самий час розкіш. Фасад будинку прикрашено фактурними елементами. Пілястри, молдінги, карнизи надають будинку англійської вишуканості. Територія будинку має огорожу, є можливість придбання паркінг місця. Міжповерхові коридори мають площу 22 м.кв. на чотири квартири, що додають додаткову площу для використання. Є можливість придбання дворівневого пентхаусу з зоною для каміна. В будинок заведено Інтернет. Дах виконаний з сталевої кровельної конструкції фінської компанії Ruukki, мансардні вікна Roto, енергозберігаючі двокамерні вікна Steko з декоративним шпросом, стіни з цегли та пінобетону, утеплені пінопластом 100 мм.
ID: 809045932
Зв’язатися з продавцем
xxx xxx xxx
Опубліковано 14 жовтня 2025 р.
Продаж квартир у центрі міста Миронівка.
20 000 $
Місцезнаходження
Миронівка
Київська область