Бізнес
Відстань до найближчого міста: У місті
Розташування: Фасадне приміщення
Тип об'єкта: Нежитлове приміщення у житловому фонді
Поверх: 1
Поверховість: 4
Загальна площа: 518 м²
Cанвузол: Так
Опалення: Індивідуальне газове
Комфорт: Відеоспостереження, Паркувальне місце, Охорона території
Меблювання: Ні
Комунікації: Асфальтована дорога, Центральна каналізація, Електрика, Вивіз відходів, Газ, Центральний водопровід
Інфраструктура (до 500 метрів): Житловий масив, Парк, зелена зона, Стоянка, парковка, гараж, Ресторан, кафе, бар, Транспортна розв'язка
Ландшафт (до 1 км.): Пагорби
Опис
Продаж комерційного приміщення в "Масиві Грін Хілз"
Усі міські комунікації,
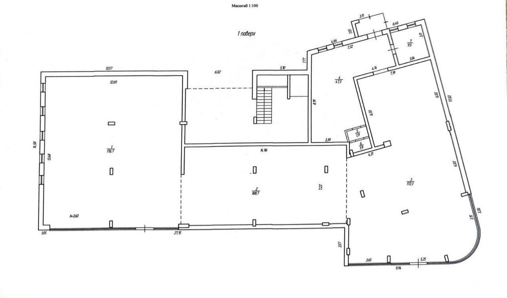
Площа :
1-торговий зал - 176.7кв.м
2-торговий зал - 108.7кв.м
3-торговий зал - 172.3кв.м
4-склад - 47.3кв.м.
5-рукомийна - 1.9кв.м.
6-санвузол - 1.9кв.м
7-кабінет - 9.5кв.м.
Закрита територія з охороною та відеоспостереженням, парковка.
Телефонуйте для перегляду!
Анна, АН "Рівненська оселя"
09******75
Усі міські комунікації,
Площа :
1-торговий зал - 176.7кв.м
2-торговий зал - 108.7кв.м
3-торговий зал - 172.3кв.м
4-склад - 47.3кв.м.
5-рукомийна - 1.9кв.м.
6-санвузол - 1.9кв.м
7-кабінет - 9.5кв.м.
Закрита територія з охороною та відеоспостереженням, парковка.
Телефонуйте для перегляду!
Анна, АН "Рівненська оселя"
09******75
ID: 905786760
Зв’язатися з продавцем
xxx xxx xxx
