Бізнес
Без комісії
Відстань до найближчого міста: У місті
Розташування: Цокольний поверх / підвал
Поверховість: 5
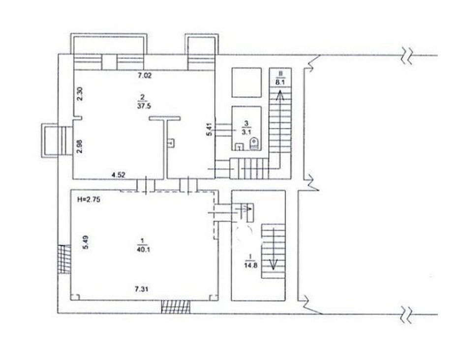
Загальна площа: 106 м²
Cанвузол: Так
Опалення: Тепловий насос
Ремонт: Так
Комфорт: Відеоспостереження, Кондиціонер, Пожежна сигналізація, Гостьовий паркінг, Душова кабіна
Меблювання: Так
Побутова техніка: Електрочайник, Холодильник, Мікрохвильова піч
Комунікації: Асфальтована дорога, Центральна каналізація, Центральний водопровід
Інфраструктура (до 500 метрів): Центр міста, Аптека, Лікарня, поліклініка, Житловий масив, Офіси, бізнес центр, Парк, зелена зона, Відділення пошти, Ресторан, кафе, бар
Ландшафт (до 1 км.): Парк
Опис
Продаж комерційного приміщення в центрі Києва, метро Золоті Ворота, вул. Винниченка, 7,
106 кв метрів.
Золоті Ворота — в самому серці столиці, поруч із Львівською та Софіївською площами, Пейзажна Алея, Шевченківський район.
• Завжди є електроенергія. Будинок на окремій лінії.
• Два окремі входи — зручно для поділу або різних напрямів діяльності
• Високоякісний дизайнерський ремонт виконано у 2021 році
• Встановлено сучасну систему вентиляції — потужну та ефективну, що забезпечує комфортний мікроклімат у будь-яку пору року, додатково є кондиціонер.
• Тепловий насос гарантує мінімальні витрати на опалення, вздовж приміщення йде труба опалення будинку.
• Тепло взимку, прохолодно влітку — приміщення зручне для роботи в будь-яких умовах
• Облаштовані великі дизайнерські ніши з стильним скленням — вони не лише надають простору затишну атмосферу, але й забезпечують природну інсоляцію
• Товщина зовнішніх стін 50 см. Сталінка, де такі приміщення проектувались, як бомбосховища.
• Всі технічні облаштування, інженерні та ремонтні роботи здійснювались відомим архітектурно-інженерним бюро.
• В цьому приміщенні все на найвищому рівні. Це рідкісне поєднання локації, якості, надійності, безпеки, естетичності, економності в експлуатації та комфорту
• Двері - це роботи відомої української майстрині. Приміщення ідеально підходить для студії психолога, кафе, кал'янного бару, бару, кафе, офісу, шоуруму, салону краси, студії, галереї, клініки, творчого простору або будь-якого іншого бізнесу. Комерційна нерухомість у такій локації — це вигідна інвестиція як для власного використання, так і для орендного доходу.
Запрошуємо на перегляд!
Ціна 130 000 у.о Без комісії для покупця!
ВЕЛЕС НЕРУХОМІСТЬ
106 кв метрів.
Золоті Ворота — в самому серці столиці, поруч із Львівською та Софіївською площами, Пейзажна Алея, Шевченківський район.
• Завжди є електроенергія. Будинок на окремій лінії.
• Два окремі входи — зручно для поділу або різних напрямів діяльності
• Високоякісний дизайнерський ремонт виконано у 2021 році
• Встановлено сучасну систему вентиляції — потужну та ефективну, що забезпечує комфортний мікроклімат у будь-яку пору року, додатково є кондиціонер.
• Тепловий насос гарантує мінімальні витрати на опалення, вздовж приміщення йде труба опалення будинку.
• Тепло взимку, прохолодно влітку — приміщення зручне для роботи в будь-яких умовах
• Облаштовані великі дизайнерські ніши з стильним скленням — вони не лише надають простору затишну атмосферу, але й забезпечують природну інсоляцію
• Товщина зовнішніх стін 50 см. Сталінка, де такі приміщення проектувались, як бомбосховища.
• Всі технічні облаштування, інженерні та ремонтні роботи здійснювались відомим архітектурно-інженерним бюро.
• В цьому приміщенні все на найвищому рівні. Це рідкісне поєднання локації, якості, надійності, безпеки, естетичності, економності в експлуатації та комфорту
• Двері - це роботи відомої української майстрині. Приміщення ідеально підходить для студії психолога, кафе, кал'янного бару, бару, кафе, офісу, шоуруму, салону краси, студії, галереї, клініки, творчого простору або будь-якого іншого бізнесу. Комерційна нерухомість у такій локації — це вигідна інвестиція як для власного використання, так і для орендного доходу.
Запрошуємо на перегляд!
Ціна 130 000 у.о Без комісії для покупця!
ВЕЛЕС НЕРУХОМІСТЬ
ID: 897777456
Зв’язатися з продавцем
xxx xxx xxx
Опубліковано 24 вересня 2025 р.
Продаж комерційного приміщення 106м. Метро Золоті Ворота Без комісії
130 000 $
Місцезнаходження
Київ, Шевченківський
Київська область