Бізнес
Вид об'єкта: Новобудова
Без комісії
Готовий співпрацювати з ріелторами
Тип будинку: Житловий фонд від 2021 р.
Назва ЖК: VERO
Поверх: 4
Поверховість: 5
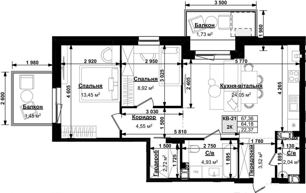
Загальна площа: 68.19 м²
Тип угоди: Від забудовника, Розстрочка від забудовника
Площа кухні: 22.37 м²
Тип стін: Цегляний
Клас житла: Бізнес
Кількість кімнат: 2 кімнати
Планування: Роздільна
Cанвузол: Роздільний
Опалення: Індивідуальне газове
Ремонт: Під чистову обробку
Меблювання: Ні
Комфорт: Ліфт, Підземний паркінг, Панорамні вікна
Комунікації: Асфальтована дорога, Центральна каналізація, Електрика, Вивіз відходів, Газ, Центральний водопровід
Інфраструктура (до 500 метрів): Відділення банку, банкомат, Автовокзал, Кінотеатр, театр, Аптека, Дитячий садок, Ринок, Парк, зелена зона, Дитячий майданчик, Відділення пошти, Ресторан, кафе, Школа, Магазин, кіоск, Супермаркет, ТРЦ, Зупинка транспорту
Ландшафт (до 1 км.): Ліс, Озеро, Парк
Опис
VERO - житловий квартал бізнес-класу від LEV Development розташований біля динамічної вул. Стрийської у Львові. Квартири в ідеальній еколокації з видом на озеро та знижками до 13% вже доступні для вибору.
Чому саме VERO:
- Лише 5 поверхів;
- Дизайнерські холи;
- Озеро поруч;
- Представницькі поверхи;
- Безпечний підземний паркінг;
- Ландшафтний дизайн;
- Бібліотека просто в холі.
Квартири представлені напряму від забудовника.
Зв’язатися з продавцем
xxx xxx xxx

