Бізнес
Без комісії
Відстань до найближчого міста: У місті
Тип об'єкта: Нежитлове приміщення у житловому фонді
Поверх: 1
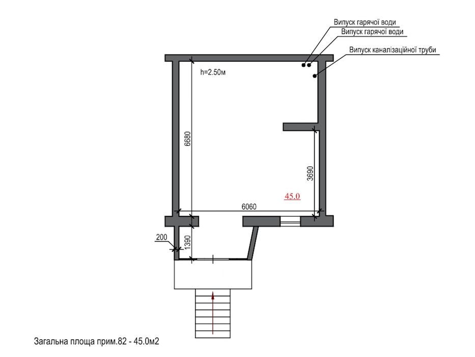
Загальна площа: 45 м²
Ремонт: Так
Опис
Без комісії для покупця!!
Продається комерційне приміщення за адресою: м. Київ, вулиця Драгоманова, 20. Загальна площа становить 45 м2. Об’єкт розташований на першому поверсі житлового будинку з окремим фасадним входом.
На даний момент приміщення орендоване великою мережею медичних лабораторій NikoLab, яка налічує понад 50 лабораторій по всій Україні. Це додає впевненості у надійності та довгостроковості орендних відносин.
У цьому ж будинку працюють магазин Hop Hey, відділення Нова Пошта, аптека Віталюкс та відділення банку Укрсиббанк. Така концентрація сервісів створює додатковий потік відвідувачів і підсилює комерційну привабливість локації.
Окрім того, поруч знаходиться трамвайна зупинка на вулиці Анни Ахматової, що забезпечує активний пасажиропотік. Неподалік розташовані великий супермаркет Novus, продуктовий магазин АТБ-Маркет, мережевий магазин краси та догляду EVA, а також Сільпо. У цьому ж районі працюють Ветеринарна клініка SuperVet, фітнес-клуб Fitness City, спортивний клуб Shogun Sport Club, кав’ярня ВКО Coffee, а також відділення поштових сервісів.
Фасад приміщення добре проглядається з вулиці, що робить його привабливим для орендарів різних напрямків діяльності. Продумане планування дозволяє ефективно організувати простір для комерційних потреб.
Цей об’єкт – чудовий варіант для інвестицій з готовим орендарем, стабільним доходом і розташуванням у жвавому районі Києва.
Для більш детальної інформації чи перегляду приміщення – телефонуйте або пишіть.
Продається комерційне приміщення за адресою: м. Київ, вулиця Драгоманова, 20. Загальна площа становить 45 м2. Об’єкт розташований на першому поверсі житлового будинку з окремим фасадним входом.
На даний момент приміщення орендоване великою мережею медичних лабораторій NikoLab, яка налічує понад 50 лабораторій по всій Україні. Це додає впевненості у надійності та довгостроковості орендних відносин.
У цьому ж будинку працюють магазин Hop Hey, відділення Нова Пошта, аптека Віталюкс та відділення банку Укрсиббанк. Така концентрація сервісів створює додатковий потік відвідувачів і підсилює комерційну привабливість локації.
Окрім того, поруч знаходиться трамвайна зупинка на вулиці Анни Ахматової, що забезпечує активний пасажиропотік. Неподалік розташовані великий супермаркет Novus, продуктовий магазин АТБ-Маркет, мережевий магазин краси та догляду EVA, а також Сільпо. У цьому ж районі працюють Ветеринарна клініка SuperVet, фітнес-клуб Fitness City, спортивний клуб Shogun Sport Club, кав’ярня ВКО Coffee, а також відділення поштових сервісів.
Фасад приміщення добре проглядається з вулиці, що робить його привабливим для орендарів різних напрямків діяльності. Продумане планування дозволяє ефективно організувати простір для комерційних потреб.
Цей об’єкт – чудовий варіант для інвестицій з готовим орендарем, стабільним доходом і розташуванням у жвавому районі Києва.
Для більш детальної інформації чи перегляду приміщення – телефонуйте або пишіть.
ID: 904344955
Зв’язатися з продавцем
xxx xxx xxx


