Бізнес
Вид об'єкта: Новобудова
Без комісії
Підходить під вимоги єОселя
Тип будинку: Житловий фонд від 2021 р.
Назва ЖК: Haute Couture ( От Кутюр)
Поверх: 4
Поверховість: 4
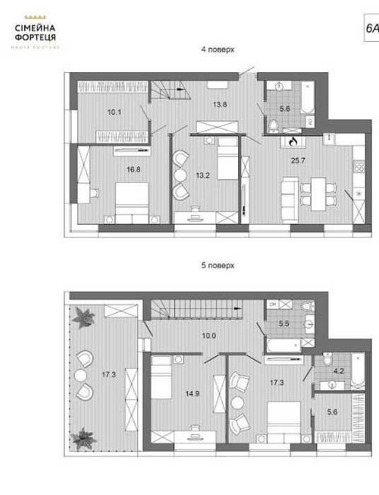
Загальна площа: 144 м²
Тип угоди: Від забудовника
Площа кухні: 25 м²
Клас житла: Еліт
Кількість кімнат: 4 кімнати
Планування: Роздільна
Опалення: Тепловий насос
Ремонт: Під чистову обробку
Меблювання: Ні
Опис
Продається великогабаритна дворівнева квартира 144 м.кв у ЖК Haute Couture.
Квартира розташована в клубному 5 поверховому будинку в мальовничій і тихій місцевості в с. Струмівка, на 4,5 поверсі. Будинок зданий, з ліфтом та цокольним приміщенням де розташовані комірки, куди теж можна спустить ліфтом. За планування 1 рівень квартири має велику кухню вітальну в якій є димохід для каміну для тепла та затишку, на другому рівні вихід на терасу 19м.кв, звідти відкривається неймовірний краєвид. Квартира повністю готова під чистовий ремонт, по периметру 1 та 2 рівня прокладена тепла підлога, присутня розводка електрики та сантехніки, встановленні всі лічильники і заведений інтернет та сигналізація. Установлений сучасний метод опалення тепловими насосами(ґрунт/вода). Квартиру можна придбати у безвідсоткове розтермінування. Цікавить? Телефонуйте для попереднього запису на перегляд.
Квартира розташована в клубному 5 поверховому будинку в мальовничій і тихій місцевості в с. Струмівка, на 4,5 поверсі. Будинок зданий, з ліфтом та цокольним приміщенням де розташовані комірки, куди теж можна спустить ліфтом. За планування 1 рівень квартири має велику кухню вітальну в якій є димохід для каміну для тепла та затишку, на другому рівні вихід на терасу 19м.кв, звідти відкривається неймовірний краєвид. Квартира повністю готова під чистовий ремонт, по периметру 1 та 2 рівня прокладена тепла підлога, присутня розводка електрики та сантехніки, встановленні всі лічильники і заведений інтернет та сигналізація. Установлений сучасний метод опалення тепловими насосами(ґрунт/вода). Квартиру можна придбати у безвідсоткове розтермінування. Цікавить? Телефонуйте для попереднього запису на перегляд.
ID: 863025885
Зв’язатися з продавцем
xxx xxx xxx
Опубліковано 22 вересня 2025 р.
Продаж дворівневої квартири 144м.кв з терасою
121 375 $
Місцезнаходження
Струмівка
Волинська область