Бізнес
Продаж від забудовника
Без комісії
Відстань до найближчого міста: У місті
Поверховість: 2
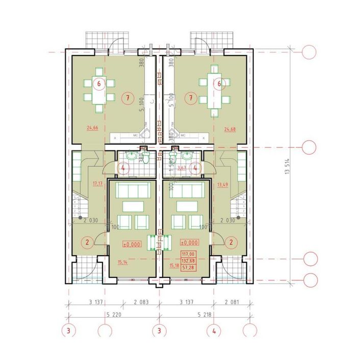
Загальна площа: 174 м²
Кількість кімнат: 4
Площа ділянки: 2 соток
Тип будинку: Дуплекс
Рік побудови / здачі: Після 2015
Тип стін: Цегляний
Зовнішнє утеплення стін: Пінопласт
Тип покрівлі: Металочерепиця
Cанвузол: 2 і більше
Опалення: Комбіноване
Ремонт: Після будівельників
Меблювання: Ні
Побутова техніка: Без побутової техніки
Мультимедіа: Кабельне, цифрове ТБ, Швидкісний інтернет
Комфорт: Підсобні приміщення, Балкон, Огорожа, Камін, Тераса
Комунікації: Асфальтована дорога, Центральна каналізація, Електрика, Вивіз відходів, Центральний водопровід, Свердловина
Інфраструктура (до 500 метрів): Школа, Магазин, кіоск, Зупинка транспорту
Опис
Продаж півособняка / дуплекса в дуже затишній та спокійній локації. Поруч магазини, школа, автобусна зупинка. Прямо до будинка пролягає асфальтована дорога.
Наповнення:
- Пісчано-вапняна штукатурка
- Сходи бетонні на 2-й поверх
- Утеплення фасаду 10см пінопласт
- Вікна 2 камери, 3 скла, 6 камерний профіль
- Облаштування прибудинкової території, бруківка, огорожа.
- Перекриття між 1-им та 2-им поверхом бетонні плити
- Комунікації: світло - 3-фазний лічильник, центральна каналізація та централізоване водопостачання
Показ у будь-який зручний для вас час.
Наповнення:
- Пісчано-вапняна штукатурка
- Сходи бетонні на 2-й поверх
- Утеплення фасаду 10см пінопласт
- Вікна 2 камери, 3 скла, 6 камерний профіль
- Облаштування прибудинкової території, бруківка, огорожа.
- Перекриття між 1-им та 2-им поверхом бетонні плити
- Комунікації: світло - 3-фазний лічильник, центральна каналізація та централізоване водопостачання
Показ у будь-який зручний для вас час.
ID: 884464064
Зв’язатися з продавцем
xxx xxx xxx

