Бізнес
Продаж від забудовника
Без комісії
Відстань до найближчого міста: У місті
Поверховість: 2
Загальна площа: 130 м²
Кількість кімнат: 3
Площа ділянки: 2.50 соток
Тип будинку: Дуплекс
Тип стін: Цегляний
Зовнішнє утеплення стін: Пінопласт
Тип покрівлі: Металочерепиця
Cанвузол: 2 і більше
Опалення: Індивідуальне газове
Ремонт: Після будівельників
Меблювання: Ні
Комфорт: Автоматичні ворота, Балкон, Огорожа, Камін, Гараж
Комунікації: Асфальтована дорога, Електрика, Вивіз відходів, Газ, Каналізація септик, Свердловина
Інфраструктура (до 500 метрів): Парк, зелена зона, Магазин, кіоск, Супермаркет, ТРЦ, Зупинка транспорту
Опис
Дуплекс в Драгомирчанах!
Продаж сучасного дуплекса в закритому містечку в с. Драгомирчани, яке розташоване в затишній приватній забудові, поруч з житловими будинками, в 5 хв до ЖК Липки, Сільпо.
Будинок площею 130 м2, розташований на земельній ділянці площею 2,5 сотих.
Планування:
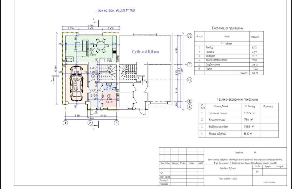
Перший поверх:
Прихожа, кухня-студія (є вихід під камін), санвузол, паливна, гараж.
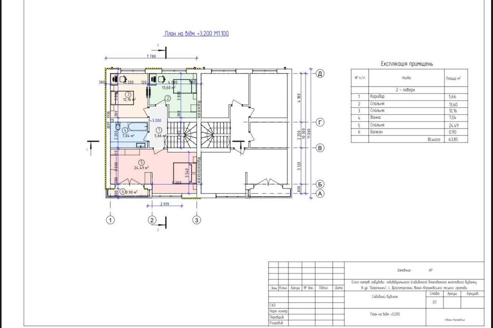
Другий поверх:
Хол, три спальні, одна з яких з власною гардеробною кімнатою, (можна зробити 4 спальні), санвузол.
Комунікації:
- світло 8 кВт,
- газ в будинку,
- вода свердловина,
- септик з очисною системою,
- наявність лічильників.
Будівництво ведеться з якісних будівельних матеріалів. Будинок цегляний, утеплений пінопластом 15 см, перекриття залізобетонне, дах металочерепиця. Вікна європейського виробника (три скла), якісна огорожа, вимощення бруківки.
Ця пропозиція – чудовий варіант для комфортного, спокійного життя в зручній локації.
Можливе розтермінування.
Для огляду і додаткової інформації дзвоніть.
Відео огляд: www.youtube.com/watch?v=HE4_mv7oXTc
Продаж сучасного дуплекса в закритому містечку в с. Драгомирчани, яке розташоване в затишній приватній забудові, поруч з житловими будинками, в 5 хв до ЖК Липки, Сільпо.
Будинок площею 130 м2, розташований на земельній ділянці площею 2,5 сотих.
Планування:
Перший поверх:
Прихожа, кухня-студія (є вихід під камін), санвузол, паливна, гараж.
Другий поверх:
Хол, три спальні, одна з яких з власною гардеробною кімнатою, (можна зробити 4 спальні), санвузол.
Комунікації:
- світло 8 кВт,
- газ в будинку,
- вода свердловина,
- септик з очисною системою,
- наявність лічильників.
Будівництво ведеться з якісних будівельних матеріалів. Будинок цегляний, утеплений пінопластом 15 см, перекриття залізобетонне, дах металочерепиця. Вікна європейського виробника (три скла), якісна огорожа, вимощення бруківки.
Ця пропозиція – чудовий варіант для комфортного, спокійного життя в зручній локації.
Можливе розтермінування.
Для огляду і додаткової інформації дзвоніть.
Відео огляд: www.youtube.com/watch?v=HE4_mv7oXTc
ID: 902266183
Зв’язатися з продавцем
xxx xxx xxx

