Бізнес
Без комісії
Готовий співпрацювати з ріелторами
Відстань до найближчого міста: до 10 км.
Поверховість: 1
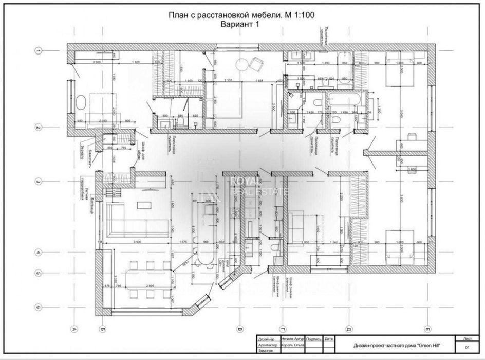
Загальна площа: 350 м²
Кількість кімнат: 6
Площа ділянки: 20 соток
Тип будинку: Будинок
Рік побудови / здачі: Після 2015
Тип стін: Цегляний
Зовнішнє утеплення стін: Мінеральна вата
Тип покрівлі: Черепиця (керамічна)
Cанвузол: 2 і більше
Опалення: Власна котельня
Ремонт: Авторський проект
Меблювання: Так
Побутова техніка: Посудомийна машина, Сушильна машина, Холодильник, Варильна панель, Мікрохвильова піч, Духова шафа, Плита, Пральна машина
Мультимедіа: Кабельне, цифрове ТБ, Супутникове ТБ, Швидкісний інтернет, Телевізор, Wi-Fi
Комфорт: Альтанка, мангал, Відеоспостереження, Підсобні приміщення, Кондиціонер, Автонавіс, Автоматичні ворота, Балкон, Ванна, Огорожа, Камін, Гараж, Підігрів підлоги, Охорона території, Сауна, баня, Душова кабіна, Сигналізація, Автономний електрогенератор, Басейн, Тераса
Комунікації: Асфальтована дорога, Електрика, Вивіз відходів, Газ, Каналізація септик, Свердловина
Інфраструктура (до 500 метрів): Дитячий садок, Парк, зелена зона, Школа
Ландшафт (до 1 км.): Ліс, Озеро, Річка
Опис
На 20 сотках території розташовані три будівлі:
- основний будинок 350 м2;
- гостьовий будинок з лазнею 120 м2;
- господарська будівля з навісом для декількох авто.
Спорудження 2021 року побудови.
При будівництві були використані найкращі будівельні та оздоблювальні матеріали. Якісна сантехніка та техніка. Всі меблі робилися за індивідуальним замовленням. Будинок енергоефективний, має газове та електричне опалення. Для автономності встановлено дизель-генератор з автозапуском.
У будинку простора кухня-вітальня, 5 житлових кімнат, 6 с/в та пральня. Великі видові вікна.
Висота стелі у будинку 4 м. У кухні-вітальні у максимальній точці стеля сягає 8 метрів.
Велика тераса.
На красивій, доглянутій території є басейн із системою переливів, підігрівом та підсвічуванням.
Висаджені рослини та чагарники. Облаштована зона для дитячого відпочинку з прогумованим покриттям.
Гостьовий будинок є автономним та включає в себе: кухню-вітальню, спальню, санвузол та баню. Обладнаний всією необхідною побутовою технікою.
Комунікації:
Електрика – 25 кВт
Газ – два котли
Каналізація - централізована
Вода – централізована
У КМ "Green Hills" інфраструктура:
- Приватна Британська школа
- Два дитячі садки
- Кафе
- Маркет
- Спортивна зала з великим басейном
- Цілодобова охорона
RR224
Зв’язатися з продавцем
xxx xxx xxx

