Бізнес
Без комісії
Відстань до найближчого міста: до 30 км.
Поверховість: 2
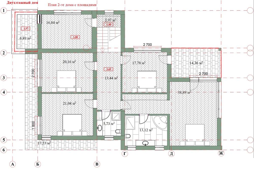
Загальна площа: 310 м²
Кількість кімнат: 4
Площа ділянки: 24 соток
Тип будинку: Будинок
Рік побудови / здачі: Після 2015
Зовнішнє утеплення стін: Мінеральна вата
Опис
Продаж без комісії сучасного двоповерхового котеджу VILLA FAMILIA , загальною площею 310 м2 з терасою 49,5 м2, розташований на земельний 24 сотки в сели Нова Березівка Бучанського районую в КМ Home Resort.
В будинку чотири спальні, кабінет, майстерня, три санвузли, вбиральня, пральня, котельня, кухня вітальня, хол. Висота першого поверху – 3,3 м, другого поверху – 3,0 м.
Централізована каналізація, централізоване водопостачання, зовнішня система водовідведення, електричне введення, Інтернет.
Фундамент – монолітний стрічковий.
Стіни зовнішні – керамічний термоблок Керам товщиною 380 мм, внутрішні стіни та перегородки – керамічна цегла М100 (Вінниця).
Перекриття – монолітні залізобетонні.
Люк виходу на зовнішній дах з автоматичним приводом.
Вікна - металопластикові REHAU EURO/ECOSOL DESIGN-70, фурнітура: МАССО MULTI-MATIC (Австрія), склопакет двокамерний енергозберігаючий: 4-14arg-4-14arg-4i. Колір внутрішній – білий, зовнішній – плівка кольору RENOLIT SE.
Покрівля - плоска мембранного типу з утепленням еструдером товщиною 200 мм, з внутрішнім відведенням води, що обігрівається. Ковпаки на димарі, покриття парапетів металом тол.0.45 (Словаччина) цвіт.
Котедж у стилі High-Tech.
Утеплення фасаду мінеральною ватою Paroc 100 мм. Оздоблення фасаду мінеральними штукатурками Ceresit та широкоформатною плиткою під «Травертином».
Тераса – монолітна з гідроізоляцією за технологією Litokol. Облицювання – керамограніт. Тумби для квітів та дерев.
Відмостка бетонна із замочкою ФЕМ від Ковальської.
Можливе безвідсоткове розстрочення на 1 рік.
Продажа без комиссии современного двухэтажного коттеджа VILLA FAMILIA, общей площадью 310 м2 с террасой 49,5 м2, расположена на земельный 24 сотки в селе Новая Березовка Бучанского района в КМ Home Resort.
В доме четыре спальни, кабинет, мастерская, три санузла, туалет, прачечная, котельная, кухня гостиная, холл. Высота первого этажа – 3,3 м, второго этажа – 3,0 м.
Централизованная канализация, централизованное водоснабжение, наружная система водоотвода, электрический ввод, Интернет.
Фундамент – монолитный ленточный.
Стены наружные – керамический термоблок Керам толщиной 380 мм, внутренние стены и перегородки – керамический кирпич М100 (Винница).
Перекрытия – монолитные железобетонные.
Люк выхода на наружную крышу с автоматическим приводом.
Окна - металлопластиковые REHAU EURO/ECOSOL DESIGN-70, фурнитура: МАССО MULTI-MATIC (Австрия), стеклопакет двухкамерный энергосберегающий: 4-14arg-4-14arg-4i. Цвет внутренний – белый, внешний – цветная пленка RENOLIT SE.
Кровля - плоская мембранного типа с утеплением эструдером толщиной 200 мм, с внутренним отводом обогреваемой воды. Колпаки на дымоходе, покрытие парапетов металлом тол.0.45 (Словакия) цвет.
Коттедж в стиле High-Tech.
Утепление фасада минеральной ватой Paroc 100 мм. Отделка фасадов минеральными штукатурками Ceresit и широкоформатной плиткой под «Травертином».
Терраса – монолитная с гидроизоляцией по технологии Litokol. Облицовка – керамогранит. Тумбы для цветов и деревьев.
Отмостка бетонная с замочкой ФЭМ от Ковальской.
Возможна беспроцентная рассрочка на 1 год.
Без комиссии коттеджный городок Новая Березовка Дом
В будинку чотири спальні, кабінет, майстерня, три санвузли, вбиральня, пральня, котельня, кухня вітальня, хол. Висота першого поверху – 3,3 м, другого поверху – 3,0 м.
Централізована каналізація, централізоване водопостачання, зовнішня система водовідведення, електричне введення, Інтернет.
Фундамент – монолітний стрічковий.
Стіни зовнішні – керамічний термоблок Керам товщиною 380 мм, внутрішні стіни та перегородки – керамічна цегла М100 (Вінниця).
Перекриття – монолітні залізобетонні.
Люк виходу на зовнішній дах з автоматичним приводом.
Вікна - металопластикові REHAU EURO/ECOSOL DESIGN-70, фурнітура: МАССО MULTI-MATIC (Австрія), склопакет двокамерний енергозберігаючий: 4-14arg-4-14arg-4i. Колір внутрішній – білий, зовнішній – плівка кольору RENOLIT SE.
Покрівля - плоска мембранного типу з утепленням еструдером товщиною 200 мм, з внутрішнім відведенням води, що обігрівається. Ковпаки на димарі, покриття парапетів металом тол.0.45 (Словаччина) цвіт.
Котедж у стилі High-Tech.
Утеплення фасаду мінеральною ватою Paroc 100 мм. Оздоблення фасаду мінеральними штукатурками Ceresit та широкоформатною плиткою під «Травертином».
Тераса – монолітна з гідроізоляцією за технологією Litokol. Облицювання – керамограніт. Тумби для квітів та дерев.
Відмостка бетонна із замочкою ФЕМ від Ковальської.
Можливе безвідсоткове розстрочення на 1 рік.
Продажа без комиссии современного двухэтажного коттеджа VILLA FAMILIA, общей площадью 310 м2 с террасой 49,5 м2, расположена на земельный 24 сотки в селе Новая Березовка Бучанского района в КМ Home Resort.
В доме четыре спальни, кабинет, мастерская, три санузла, туалет, прачечная, котельная, кухня гостиная, холл. Высота первого этажа – 3,3 м, второго этажа – 3,0 м.
Централизованная канализация, централизованное водоснабжение, наружная система водоотвода, электрический ввод, Интернет.
Фундамент – монолитный ленточный.
Стены наружные – керамический термоблок Керам толщиной 380 мм, внутренние стены и перегородки – керамический кирпич М100 (Винница).
Перекрытия – монолитные железобетонные.
Люк выхода на наружную крышу с автоматическим приводом.
Окна - металлопластиковые REHAU EURO/ECOSOL DESIGN-70, фурнитура: МАССО MULTI-MATIC (Австрия), стеклопакет двухкамерный энергосберегающий: 4-14arg-4-14arg-4i. Цвет внутренний – белый, внешний – цветная пленка RENOLIT SE.
Кровля - плоская мембранного типа с утеплением эструдером толщиной 200 мм, с внутренним отводом обогреваемой воды. Колпаки на дымоходе, покрытие парапетов металлом тол.0.45 (Словакия) цвет.
Коттедж в стиле High-Tech.
Утепление фасада минеральной ватой Paroc 100 мм. Отделка фасадов минеральными штукатурками Ceresit и широкоформатной плиткой под «Травертином».
Терраса – монолитная с гидроизоляцией по технологии Litokol. Облицовка – керамогранит. Тумбы для цветов и деревьев.
Отмостка бетонная с замочкой ФЭМ от Ковальской.
Возможна беспроцентная рассрочка на 1 год.
Без комиссии коттеджный городок Новая Березовка Дом
ID: 907750289
Зв’язатися з продавцем
xxx xxx xxx
Опубліковано 09 лютого 2026 р.
Продаж Без % будинку в с. Нова Березівка
320 000 $
Місцезнаходження
Колонщина
Київська область