Бізнес
Вид об'єкта: Новобудова
Тип будинку: Житловий фонд від 2021 р.
Назва ЖК: ЖК Амстердам
Поверх: 5
Поверховість: 5
Загальна площа: 84.75 м²
Тип угоди: Від забудовника
Площа кухні: 17.70 м²
Кількість кімнат: 3 кімнати
Інфраструктура (до 500 метрів): Відділення пошти, Магазин, кіоск, Зупинка транспорту
Ландшафт (до 1 км.): Ліс
Опис
Готова, простора, твоя: 3-спальна квартира у ЖК Амстердам
2 підʼїзд, 5 поверх, вул. Паркова, 72, с. Струмівка
84,75 м²
Що всередині:
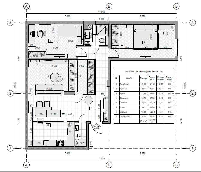
-три окремі спальні — 12,43 / 13,66 / 16,27 м²
-кухня-вітальня — 17,70 м²
-два санвузли — 3,50 і 2,02 м²
-коридор — 17,38 м²
-лоджія — 1,79 м²
Усе основне вже зроблено забудовником:
стяжка підлоги та штукатурка стін розведена електрика й сантехнічні виходи
встановлені радіатори та лічильники
тепла підлога в кухні-вітальні, санвузлах та коридорі
А ще — закритий двір, нові дитячий та спортивний майданчик, зручні паркомісця та швидкий виїзд до міста
Хочеш подивитись? Дзвони:
09******10
2 підʼїзд, 5 поверх, вул. Паркова, 72, с. Струмівка
84,75 м²
Що всередині:
-три окремі спальні — 12,43 / 13,66 / 16,27 м²
-кухня-вітальня — 17,70 м²
-два санвузли — 3,50 і 2,02 м²
-коридор — 17,38 м²
-лоджія — 1,79 м²
Усе основне вже зроблено забудовником:
стяжка підлоги та штукатурка стін розведена електрика й сантехнічні виходи
встановлені радіатори та лічильники
тепла підлога в кухні-вітальні, санвузлах та коридорі
А ще — закритий двір, нові дитячий та спортивний майданчик, зручні паркомісця та швидкий виїзд до міста
Хочеш подивитись? Дзвони:
09******10
ID: 900961634
Зв’язатися з продавцем
xxx xxx xxx
Опубліковано 24 листопада 2025 р.
Продаж 3-спальної квартири
2 844 444 грн.
Місцезнаходження
Струмівка
Волинська область