Бізнес
Вид об'єкта: Новобудова
Без комісії
Готовий співпрацювати з ріелторами
Тип будинку: Житловий фонд від 2021 р.
Назва ЖК: KALTWASSER
Поверх: 2
Поверховість: 3
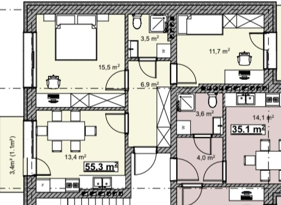
Загальна площа: 55.30 м²
Тип угоди: Від забудовника, Розстрочка від забудовника
Площа кухні: 13 м²
Тип стін: Цегляний
Клас житла: Комфорт
Кількість кімнат: 2 кімнати
Планування: Роздільна
Cанвузол: Суміжний
Опалення: Індивідуальне газове
Ремонт: Під чистову обробку
Мультимедіа: Швидкісний інтернет
Комфорт: Балкон, лоджія, Панорамні вікна
Комунікації: Асфальтована дорога, Центральна каналізація, Електрика, Газ, Центральний водопровід
Інфраструктура (до 500 метрів): Дитячий садок, Парк, зелена зона, Дитячий майданчик, Школа, Магазин, кіоск, Супермаркет, ТРЦ, Зупинка транспорту
Ландшафт (до 1 км.): Ліс, Парк
Опис
Дизайн та якість: індивідуальний проект, цегляний будинок з монолітним перекриттям, утепленим фасадом, балконами та заскленими лоджіями.
Приватність та тиша: Лише 3 квартири на поверсі, 18 у будинку, що гарантує спокій і комфортне сусідство.
Сучасне планування: простора кухня, світлі кімнати, лоджія та балкон - все для Вашого затишку.
Ваш власний куточок природи: Закрита прибудинкова територія з місцем для дитячого дозвілля, з місцем під автомобіль, та місцем, де можна організувати вечори з родиною чи друзями.
Локація: с.Зимна Вода
У пішій доступності школа, дитячий садок, магазини, ресторани, транспорт. Усього за кілька хвилин їзди - ТЦ “Епіцентр”, “Метро”.
Розтермінування під 0% річних - будинок будується - Ви поступово сплачуєте за квартиру.
Простір для життя з індивідуальним газовим опаленням і всіма комунікаціями.
Це будинок, де Ваша сім’я зможе жити в затишку, насолоджуючись простором і комфортом. Безпечна територія, сучасні рішення та вдале розташування роблять цей варіант ідеальним вибором.
Телефонуйте вже сьогодні, щоб дізнатися більше
Зв’язатися з продавцем
xxx xxx xxx
Продаж 2-кімнатної квартири в новобудові
60 500 $
Місцезнаходження
Зимна Вода
Львівська область
