Бізнес
Вид об'єкта: Новобудова
Без комісії
Готовий співпрацювати з ріелторами
Тип будинку: Житловий фонд від 2021 р.
Назва ЖК: ЖК Do Re Mi
Поверх: 3
Поверховість: 4
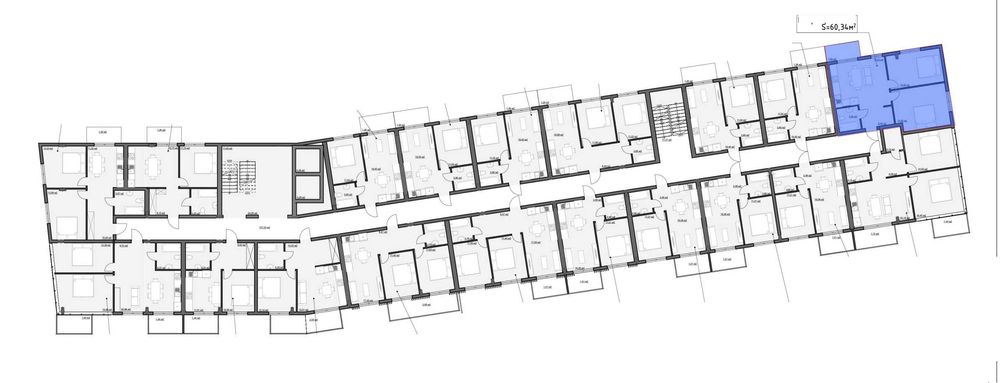
Загальна площа: 61 м²
Тип угоди: Від забудовника, Розстрочка від забудовника
Площа кухні: 21 м²
Тип стін: Цегляний
Клас житла: Бізнес
Кількість кімнат: 2 кімнати
Планування: Роздільна
Cанвузол: Суміжний
Опалення: Тепловий насос
Мультимедіа: Швидкісний інтернет
Комфорт: Балкон, лоджія, Панорамні вікна, Відеоспостереження, Паркувальне місце, Гостьовий паркінг, Підземний паркінг
Комунікації: Газ, Центральний водопровід, Електрика, Центральна каналізація
Інфраструктура (до 500 метрів): Дитячий садок, Школа, Зупинка транспорту, Магазин, кіоск, Супермаркет, ТРЦ, Парк, зелена зона, Дитячий майданчик, Аптека, Лікарня, поліклініка, Центр міста, Ресторан, кафе
Опис
Перший внесок від 20%!
Об`єкт на етапі будівництва, термін здачі 4 квартал 2026 року.
Варіант з роздільними двома кімнатами та кухня - студія.
Характеристики будинку:
- 4-поверховий житловий комплекс з першим поверхом для комерційних приміщень.
- Будівництво здійснюється за сучасною технологією з використанням цегли та монолітно-каркасної конструкції.
- Стіни виготовлені з керамоблоків та утеплені пінополістиролом (пінопластом).
- Індивідуальне опалення в кожній квартирі забезпечує комфорт та ефективність.
- Висота стелі складає 2.8 метрів, що створює відчуття простору та вільності.
- Комплекс складається з першого поверху комерційних приміщень та 38 житлових площ, які продаються з чорновим ремонтом, готовими до індивідуального оздоблення.
- Територія комплексу є відкритою, з дбайливо озелененою зоною.
Зручне паркування:
- Гостьовий паркінг на 20 місць розташований на відкритій території.
- Підземний паркінг з ліфтом на 20 місць, з можливістю купівлі.
Не пропустіть можливість стати власником якісного та комфортного житла в зручному місці! Звертайтеся до нас для отримання додаткової інформації та організації перегляду.
ІНФРАСТРУКТУРА:
- центр Львова за 15хв;
- школи;
- дитячі садочки;
- спорт комплекс "STARFIT»;
- зупинки громадського транспорту;
- дитячий майданчик на внутрішній закритій території;
- торгові центри;
- магазини.
В ЦІНУ ВХОДИТЬ:
- кладка з червоної керамічної цегли (керамічні блоки).
- утеплений фасад 100-150мм і дах 200мм
- залізобетонне перекриття
- двері броньовані, преміум класу
- вікна затемнені-дзеркальні енергозберігаючі двокамерні, п’ятикамерний профіль(Rehau), німецька фурнітура (Wink House)
- індивідуальне опалення
- комунікації підключено, встановлено лічильники на воду, електроенергію
- штукатурка чистова під маяки
- закрита облаштована територія, відеонагляд, парковка, дитячий майданчик
- ОСББ, домофон, інтернет.
Зв’язатися з продавцем
xxx xxx xxx
