Бізнес
Вид об'єкта: Новобудова
Без комісії
Готовий співпрацювати з ріелторами
Тип будинку: Житловий фонд від 2021 р.
Назва ЖК: SOUL PARK
Поверх: 5
Поверховість: 6
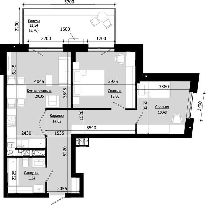
Загальна площа: 68.35 м²
Тип угоди: Від забудовника, Розстрочка від забудовника
Площа кухні: 21.20 м²
Тип стін: Цегляний
Клас житла: Бізнес
Кількість кімнат: 2 кімнати
Планування: Роздільна
Cанвузол: Роздільний
Опалення: Індивідуальне газове
Ремонт: Під чистову обробку
Меблювання: Ні
Комфорт: Балкон, лоджія, Ліфт, Підземний паркінг, Панорамні вікна
Комунікації: Асфальтована дорога, Центральна каналізація, Електрика, Вивіз відходів, Газ, Центральний водопровід
Інфраструктура (до 500 метрів): Відділення банку, банкомат, Кінотеатр, театр, Аптека, Лікарня, поліклініка, Дитячий садок, Ринок, Парк, зелена зона, Дитячий майданчик, Відділення пошти, Ресторан, кафе, Школа, Магазин, кіоск, Супермаркет, ТРЦ, Зупинка транспорту
Ландшафт (до 1 км.): Ліс, Парк
Опис
SOUL PARK - це скандинавська архітектура, квартири з терасами та патіо, представницькі поверхи з персональним доступом тільки для власників, комерція понад 2100 м² де розмістяться магазини, кафе, ресторани, фітнес-зали, сервісні центри, офісні приміщення, а також школа розташована у окремій будівлі площею 1600 м².
Квартири представлені напряму від забудовника.
Зв’язатися з продавцем
xxx xxx xxx

