Перейти до основного вмісту
Чат
  • Укр
  • Рус

Повідомлення

Додати оголошення
Продаж 2-кім квартири по вул Львівській Городок
Продаж 2-кім квартири по вул Львівській Городок
РекламуватиПідняти

Бізнес

Вид об'єкта: Новобудова

Без комісії

Поверх: 3

Поверховість: 6

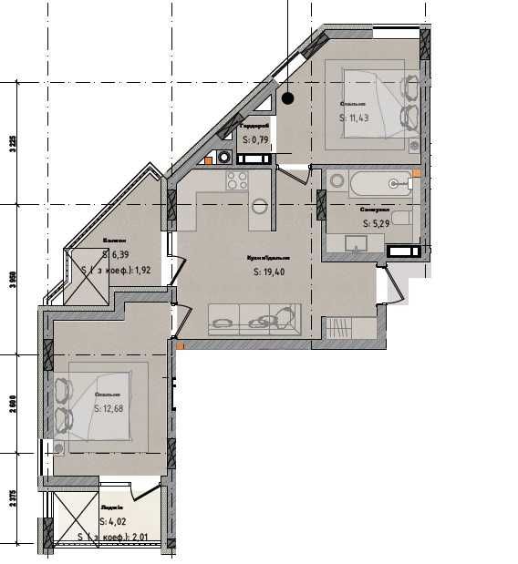
Загальна площа: 52 м²

Площа кухні: 20 м²

Кількість кімнат: 2 кімнати

Опис

Продаж 2-кім по вул Яворіська (Бічна Львівської) в Городку
здача вкінці 2027,
Є різні площі, старт будівництва
ID: 898302780

Зв’язатися з продавцем

Остап

на OLX з липень 2015 р.

Онлайн 11 листопада 2025 р.

xxx xxx xxx

Опубліковано 12 листопада 2025 р.

Продаж 2-кім квартири по вул Львівській Городок

36 000 $

Місцезнаходження

Location

Городок

Львівська область

Безкоштовний застосунок на твій телефон