Бізнес
Вид об'єкта: Новобудова
Тип будинку: Житловий фонд від 2021 р.
Назва ЖК: Говард
Поверх: 6
Поверховість: 10
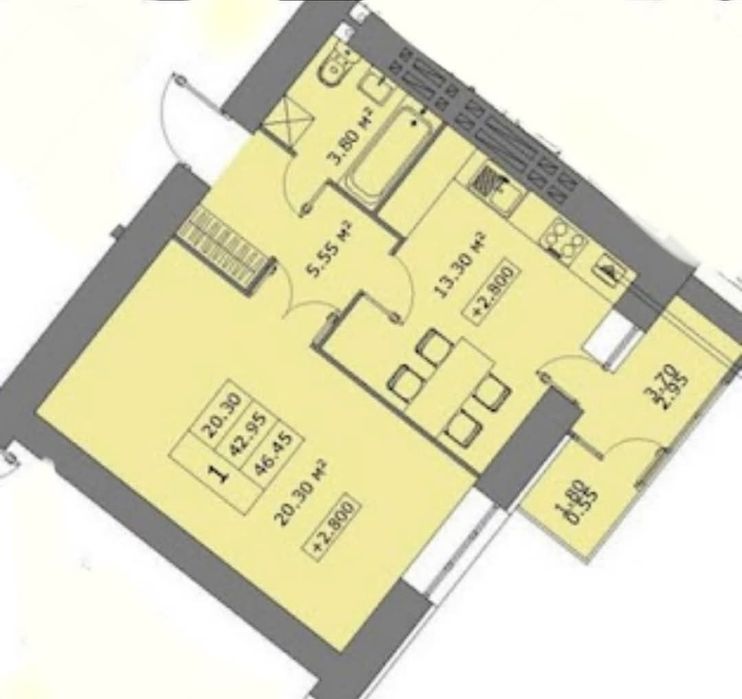
Загальна площа: 47 м²
Площа кухні: 13 м²
Тип стін: Цегляний
Клас житла: Комфорт
Кількість кімнат: 1 кімната
Планування: Роздільна
Cанвузол: Суміжний
Опалення: Індивідуальне газове
Ремонт: Після будівельників
Меблювання: Ні
Побутова техніка: Без побутової техніки
Мультимедіа: Без мультимедіа
Комфорт: Ліфт, Балкон, лоджія
Комунікації: Електрика, Центральна каналізація, Газ, Вивіз відходів, Центральний водопровід, Асфальтована дорога
Інфраструктура (до 500 метрів): Дитячий майданчик, Школа, Відділення банку, банкомат, Парк, зелена зона, Дитячий садок, Відділення пошти, Супермаркет, ТРЦ, Магазин, кіоск, Аптека, Зупинка транспорту
Ландшафт (до 1 км.): Парк
Інклюзивність: Поручні на пандусі, Пандус довжиною понад 2,4 м.
Опис
Не кутова. Сонячна та затишна.
Стан квартири після забудовника, зроблена стяжка, поштукатурені стіни, встановлено вікна та вхідні двері.
Є можливість перепланувати на двокімнатну.
Будинок цегляний та зовні утеплений, введений в експлуатацію.
Дуже гарне розташування будинку.
Тихий спальний мікрорайон поблизу парку.
Поряд школа, дитсадок, супермаркет, зупинка транспорту.
Прибудинкова територія облаштована відпочинковою зоною для дітей.
Також є парковка для автомобіля.
Зв’язатися з продавцем
xxx xxx xxx
Продаж 1 кім квартири на Бамі
47 000 $
Місцезнаходження
Тернопіль
Тернопільська область
