Бізнес
Вид об'єкта: Новобудова
Без комісії
Тип будинку: Житловий фонд від 2021 р.
Назва ЖК: ЖК BigBen
Поверх: 5
Поверховість: 7
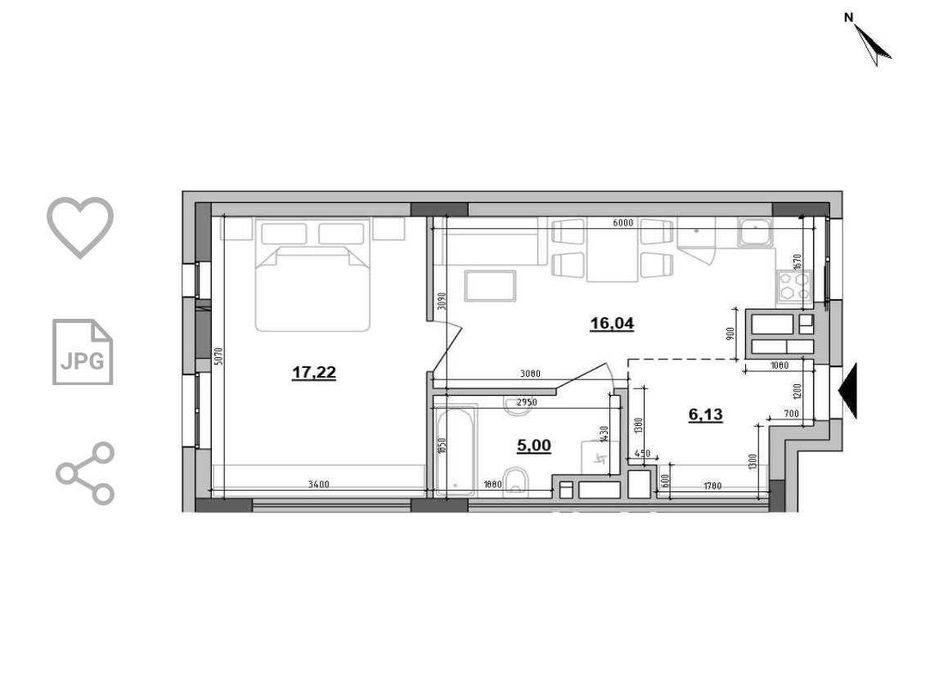
Загальна площа: 44.39 м²
Тип угоди: Від забудовника, Розстрочка від забудовника
Площа кухні: 16.40 м²
Тип стін: Газоблок
Клас житла: Комфорт
Кількість кімнат: 1 кімната
Планування: Роздільна
Cанвузол: Суміжний
Опалення: Централізоване
Ремонт: Після будівельників
Меблювання: Ні
Побутова техніка: Без побутової техніки
Мультимедіа: Без мультимедіа
Комфорт: Ліфт, Підземний паркінг, Гостьовий паркінг, Технологія "розумний будинок"
Комунікації: Асфальтована дорога, Центральна каналізація, Електрика, Вивіз відходів, Центральний водопровід
Інфраструктура (до 500 метрів): Відділення банку, банкомат, Автовокзал, Кінотеатр, театр, Аптека, Лікарня, поліклініка, Дитячий садок, Ринок, Парк, зелена зона, Дитячий майданчик, Відділення пошти, Ресторан, кафе, Школа, Магазин, кіоск, Супермаркет, ТРЦ, Зупинка транспорту
Ландшафт (до 1 км.): Озеро, Парк
Інклюзивність: Ліфт розміром не менше 1,1х1,4 м.
Опис
Продаються 1-кімнатні апартаменти у новобудові від надійного забудовника РІЕЛ – ЖК BigBen (м. Львів, вул. Стрийська, Персенківка, 2).
Здача будинку – III квартал 2027 року.
Площа квартири – 44,39 м².
Планування:
• простора вхідна зона;
• кухня-вітальня;
• ізольована спальня;
• суміжний санвузол.
Комплектація:
• енергоефективні вікна (6-камерний профіль, 2-камерний склопакет);
• вхідні утеплені металеві двері з МДФ-накладкою;
• система «Розумний дім» від Ajax (хаб, датчик руху, датчик відкриття, брелок з тривожною кнопкою);
• індивідуальні лічильники на тепло, електрику та воду;
• заведені всі комунікації: опалення, електрика, вода, каналізація, інтернет.
Фінансові умови:
• перший внесок – від 30%;
• без здорожчання при оплаті 50%;
• знижка 3% при повній оплаті;
• додаткові знижки для військових, медиків та ВПО;
• розтермінування – до II кварталу 2027 року.
Переваги комплексу:
• сучасний підземний паркінг;
• закрита територія без авто та сторонніх;
• численні зони для відпочинку;
• вигідно для власного проживання або як інвестиція.
Деталі та покази – за домовленістю.
Зв’язатися з продавцем
xxx xxx xxx

