Бізнес
Продаж від забудовника
Без комісії
Відстань до найближчого міста: У місті
Поверховість: 2
Загальна площа: 133 м²
Кількість кімнат: 4
Площа ділянки: 2 соток
Тип будинку: Таунхаус
Рік побудови / здачі: Після 2015
Тип стін: Цегляний
Зовнішнє утеплення стін: Пінопласт
Тип покрівлі: Металочерепиця
Cанвузол: 2 і більше
Опалення: Індивідуальне електро
Ремонт: Після будівельників
Меблювання: Ні
Побутова техніка: Без побутової техніки
Мультимедіа: Кабельне, цифрове ТБ, Wi-Fi
Комфорт: Балкон, Огорожа, Камін, Тераса
Комунікації: Асфальтована дорога, Електрика, Вивіз відходів, Каналізація септик, Свердловина
Інфраструктура (до 500 метрів): Парк, зелена зона, Дитячий майданчик, Ресторан, кафе, Магазин, кіоск
Ландшафт (до 1 км.): Річка
Опис
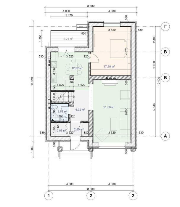
Площа будинку – 133,21 м2
Земельна ділянка – до 2-х сот.
Тип стін – цегла
10кВт на будинок
Електричне опалення
Чорнова стяжка підлоги
Штукатурка стін
Утеплення зовнішніх стін пінопласт 10 см
Лічильник на світло
Енергозберігаючі вікна
Вхідні двері
Благоустрій території
ТЕЛЕФОНУЙТЕ!!!
Менеджер будівельної компанії
Дробко Ігор
Зв’язатися з продавцем
xxx xxx xxx

