Бізнес
Відстань до найближчого міста: У місті
Поверховість: 1
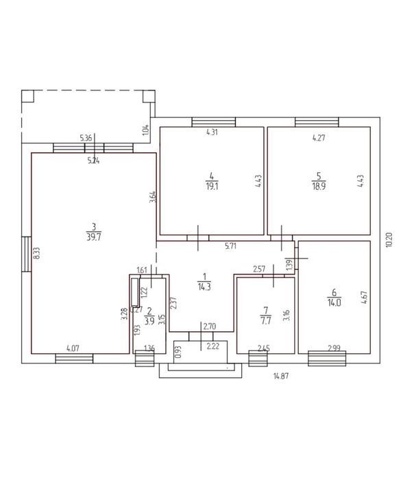
Загальна площа: 120 м²
Кількість кімнат: 4
Площа ділянки: 7 соток
Тип будинку: Будинок
Рік побудови / здачі: На етапі будівництва
Тип стін: Газоблок
Зовнішнє утеплення стін: Мінеральна вата
Тип покрівлі: Металочерепиця
Cанвузол: Суміжний
Опалення: Індивідуальне газове
Ремонт: Після будівельників
Меблювання: Ні
Опис
Продаж одноповерхового будинку в Новоолексіївці
Нова будова. Загальна площа 120 кв.м. Роботи по фасаду повністю завершені. Усередині стіни поштукатурені. Панорамні вікна. Зручне планування.
• Три великі спальні
• Кухня вітальня з шатровим дахом
• Санвузол
• Техприміщення для котла та пральні
Комунікації:
• Газ
• Світло підведене
• Каналізація септик 11 кубів
• Вода централизована
Додатково:
• Плитка на подвір’ї
• Відкатні ворота з електроприводом
• Хороші сусіди поруч
Новоолексіївка – один з найкращих районів Кропивницького.
Будинок готовий до фінального ремонту всередині. Чудовий варіант для сім’ї.
Нова будова. Загальна площа 120 кв.м. Роботи по фасаду повністю завершені. Усередині стіни поштукатурені. Панорамні вікна. Зручне планування.
• Три великі спальні
• Кухня вітальня з шатровим дахом
• Санвузол
• Техприміщення для котла та пральні
Комунікації:
• Газ
• Світло підведене
• Каналізація септик 11 кубів
• Вода централизована
Додатково:
• Плитка на подвір’ї
• Відкатні ворота з електроприводом
• Хороші сусіди поруч
Новоолексіївка – один з найкращих районів Кропивницького.
Будинок готовий до фінального ремонту всередині. Чудовий варіант для сім’ї.
ID: 907705541
Зв’язатися з продавцем
xxx xxx xxx
Опубліковано 27 листопада 2025 р.
Продається новобудова на Новоолексіївці
180 000 $
Місцезнаходження
Черняхівка
Кіровоградська область