Бізнес
Без комісії
Відстань до найближчого міста: до 30 км.
Поверх: 1
Поверховість: 3
Загальна площа: 1 150 м²
Рік побудови / здачі: Після 2015
Cанвузол: Так
Опалення: Інше
Ремонт: Ні
Комфорт: Гардероб, Балкон, лоджія, Тераса, Панорамні вікна, Паркувальне місце, Гостьовий паркінг
Побутова техніка: Без побутової техніки
Комунікації: Електрика, Каналізація септик
Опис
НОВИНКА НА ІНВЕСТИЦІЙНОМУ РИНКУ УКРАЇНИ!!!
ОБЄКТ ВАРТИЙ УВАГИ!!!
Станьте власником готельного комплексу в Буковелі!!!
1150 м.кв 20 сот. 550 дол./м.кв
готель збудований у 2020 р. та розташованій на відстані 2 км від 1 витягу ГК Буковель, 150 метрів від центральної дороги (супермаркети, безліч кафе і ресторанів) з дуже гарним краєвидом на гори і ліс, асфальтована дорога до обєкта
комплекс збудовано монолітно-каркасного типу (стіни газоблок Aerog) Дах - фальцове покриття австрійського виробника Westalpin.
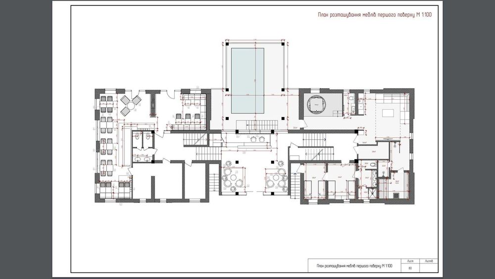
на першому поверсі передбачено кухню, ресторан на 40 посадочних місць з панорамними вікнами та виходом на терасу, рецепція, кімната адміністратора, перехід між двома будівлями з виходом до басейну, санвузли, СПА, сауна, кімната відпочинку, джакузі, пральня, паливна, приміщення для прокату та зберігання спорядження, дві кімнати персоналу.
другий, третій та мансардний поверхи - номерний фонд (20 номерів)
дизайнерські рішення, перелік проектних рішень
алюмінієві двері та конструкції, метало-пластикові 5-камерні вікна
утеплення системи Caparol, водостічна система
басейн, балкони з номера
ОБЄКТ ВАРТИЙ УВАГИ!!!
Станьте власником готельного комплексу в Буковелі!!!
1150 м.кв 20 сот. 550 дол./м.кв
готель збудований у 2020 р. та розташованій на відстані 2 км від 1 витягу ГК Буковель, 150 метрів від центральної дороги (супермаркети, безліч кафе і ресторанів) з дуже гарним краєвидом на гори і ліс, асфальтована дорога до обєкта
комплекс збудовано монолітно-каркасного типу (стіни газоблок Aerog) Дах - фальцове покриття австрійського виробника Westalpin.
на першому поверсі передбачено кухню, ресторан на 40 посадочних місць з панорамними вікнами та виходом на терасу, рецепція, кімната адміністратора, перехід між двома будівлями з виходом до басейну, санвузли, СПА, сауна, кімната відпочинку, джакузі, пральня, паливна, приміщення для прокату та зберігання спорядження, дві кімнати персоналу.
другий, третій та мансардний поверхи - номерний фонд (20 номерів)
дизайнерські рішення, перелік проектних рішень
алюмінієві двері та конструкції, метало-пластикові 5-камерні вікна
утеплення системи Caparol, водостічна система
басейн, балкони з номера
ID: 818080911
Зв’язатися з продавцем
xxx xxx xxx

