Бізнес
Вид об'єкта: Новобудова
Поверх: 3
Поверховість: 10
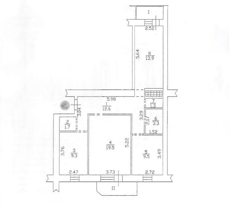
Загальна площа: 57.80 м²
Тип угоди: Від забудовника
Площа кухні: 10 м²
Тип стін: Цегляний
Кількість кімнат: 2 кімнати
Інфраструктура (до 500 метрів): Зупинка транспорту, Ринок, Магазин, кіоск, Супермаркет, ТРЦ, Парк, зелена зона, Дитячий майданчик, Аптека, Ресторан, кафе, Відділення банку, банкомат
Ландшафт (до 1 км.): Річка
Опис
Весняна знижка вартості, яка діє з 01.04.2025 року по 31.05.2025 року , ціна за 1 м2 -550$.
Затишні квартири від забудовника!
Пропонуємо вашій увазі затишні квартири в новобудові,за адресою м. Горішні Плавні, вул. Першопрохідців, буд. 5. Недалеко від ринку, магазинів, торговельного центру, автомобільної стоянки та річки Дніпро, ці квартири стануть ідеальним вибором для комфортного та зручного життя.
Двокімнатні та трикімнатні варіанти доступні, щоб задовольнити всі ваші потреби. Нова забудова гарантує сучасний дизайн та надійність конструкції.
2-кімнатна - від 57,8 м2;
3-кімнатна - від 76,1 м2;
Зручний доступ до торгових точок та природних зон робить цей район комфортним для будь-якого стилю життя. Не втрачайте можливості забезпечити собі комфортне місце проживання!
Встановлені: система опалення (радіатори), лічильники холодної та гарячої води, лічильник газу, електричний лічильник. Є можливість встановлення лічильника опалення. Квартири підготовлені до ремонту, без внутрішніх робіт.
Телефонуйте для узгодження перегляду та отримання додаткової інформації за номером +38********36.
Затишні квартири від забудовника!
Пропонуємо вашій увазі затишні квартири в новобудові,за адресою м. Горішні Плавні, вул. Першопрохідців, буд. 5. Недалеко від ринку, магазинів, торговельного центру, автомобільної стоянки та річки Дніпро, ці квартири стануть ідеальним вибором для комфортного та зручного життя.
Двокімнатні та трикімнатні варіанти доступні, щоб задовольнити всі ваші потреби. Нова забудова гарантує сучасний дизайн та надійність конструкції.
2-кімнатна - від 57,8 м2;
3-кімнатна - від 76,1 м2;
Зручний доступ до торгових точок та природних зон робить цей район комфортним для будь-якого стилю життя. Не втрачайте можливості забезпечити собі комфортне місце проживання!
Встановлені: система опалення (радіатори), лічильники холодної та гарячої води, лічильник газу, електричний лічильник. Є можливість встановлення лічильника опалення. Квартири підготовлені до ремонту, без внутрішніх робіт.
Телефонуйте для узгодження перегляду та отримання додаткової інформації за номером +38********36.
ID: 828756236
Зв’язатися з продавцем
xxx xxx xxx
Опубліковано 20 жовтня 2025 р.
Продається 2-,3-кімнатна квартира. 550$ -1 м2. ЗНИЖКА!
31 790 $
Місцезнаходження
Горішні Плавні
Полтавська область