Бізнес
Без комісії
Відстань до найближчого міста: У місті
Розташування: Частина будівлі
Тип об'єкта: Торгово-офісний центр
Поверх: 2
Поверховість: 3
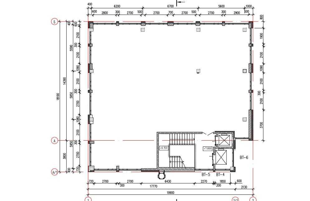
Загальна площа: 320 м²
Рік побудови / здачі: На етапі будівництва
Опалення: Індивідуальне електро
Комфорт: Кондиціонер, Ліфт, Гостьовий паркінг, Панорамні вікна, Паркувальне місце
Інфраструктура (до 500 метрів): Центр міста, Офіси, бізнес центр, Транспортна розв'язка
Ландшафт (до 1 км.): Водосховище
Опис
Продамо другий поверх торгівельно-офісного центру в Черкасах на бульварі Шевченка 178, біля «Чорноморки» . Всього буде 3 поверхи, електричне опалення, пасажирський ліфт. Ступінь та якість оздоблення – по домовленості з замовником. Можливий продаж як усього поверху, так і окремих приміщеннь. Ціна під оздоблення - 1200 $/кв.м.
ID: 900464528
Зв’язатися з продавцем
xxx xxx xxx

