Бізнес
Без комісії
Відстань до найближчого міста: У місті
Поверховість: 2
Загальна площа: 64 м²
Кількість кімнат: 2
Площа ділянки: 1.50 соток
Тип будинку: Таунхаус
Тип стін: Цегляний
Cанвузол: Суміжний
Опалення: Індивідуальне електро
Меблювання: Ні
Опис
Продам таунхаус в Ірпені! З наповненням! Всього 45000 уе!
Моливе розтермінування!
Земля 1.5 сотки(разом з домом)
1-й поверх: кухня студія, санвузол
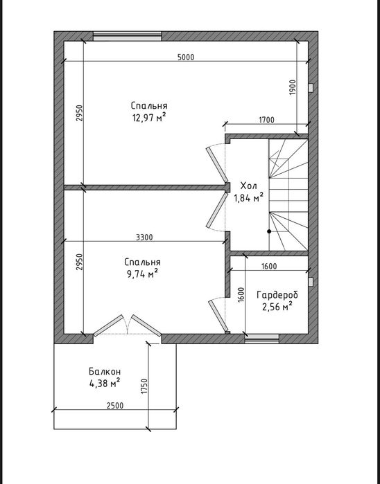
2-й поверх: 2 кімнати, балкон
Площа 64м2
каналізація септік
вода скважина
опалення електро
Матеріал: газоблок
Утеплення: стіни-пінопласт, дах-мінвата.
Дах: бітумна черепиця
Наповнення: зроблений каркас сходів.
Парковка на одне авто +гостьовий паркинг
Моливе розтермінування!
Земля 1.5 сотки(разом з домом)
1-й поверх: кухня студія, санвузол
2-й поверх: 2 кімнати, балкон
Площа 64м2
каналізація септік
вода скважина
опалення електро
Матеріал: газоблок
Утеплення: стіни-пінопласт, дах-мінвата.
Дах: бітумна черепиця
Наповнення: зроблений каркас сходів.
Парковка на одне авто +гостьовий паркинг
ID: 888496136
Зв’язатися з продавцем
xxx xxx xxx

