Бізнес
Відстань до найближчого міста: У місті
Поверховість: 2
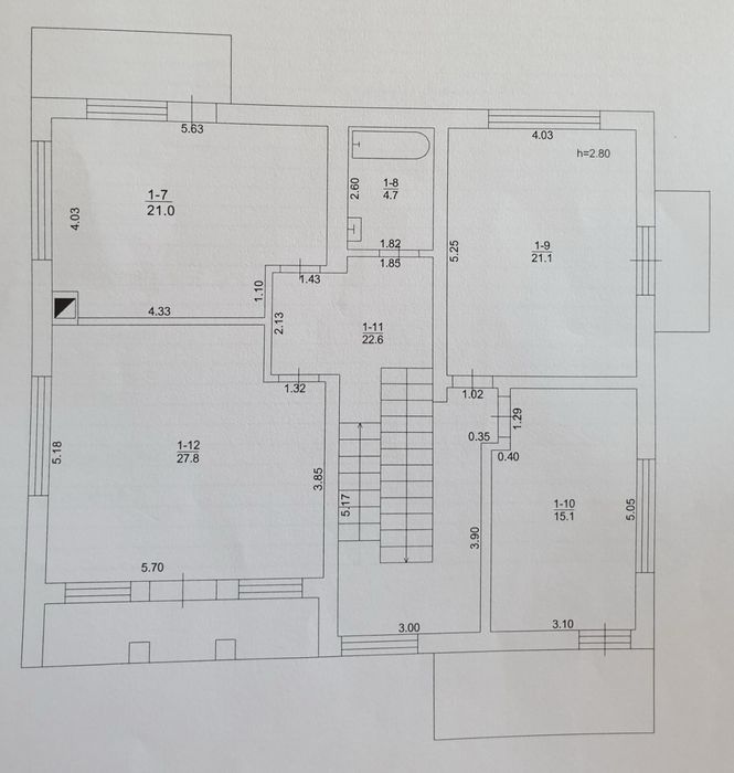
Загальна площа: 246 м²
Кількість кімнат: 4
Площа ділянки: 14.50 соток
Тип будинку: Будинок
Рік побудови / здачі: 2011 - 2015
Тип стін: Цегляний
Зовнішнє утеплення стін: Пінопласт
Тип покрівлі: Металочерепиця
Cанвузол: 2 і більше
Опалення: Індивідуальне газове
Ремонт: Під чистову обробку
Меблювання: Ні
Інфраструктура (до 500 метрів): Школа, Ринок, Магазин, кіоск, Дитячий майданчик, Аптека, Супермаркет, ТРЦ, Відділення пошти, Лікарня, поліклініка, Ресторан, кафе, Дитячий садок
Ландшафт (до 1 км.): Озеро, Гори, Ліс
Опис
Продається просторий сучасний двоповерховий будинок+ цокольний поверх у м. Трускавець. ВІД ВЛАСНИКА!!!
Будинок повністю під чистове оздоблення — чудова можливість облаштувати інтер’єр, на власний смак.
Панорамні краєвиди з вікон, дві видові тераси, тиха спокійна вулиця.
Площа:
• Загальна — 246 м²
• Житлова — 138 м²
• Земельна ділянка — 14,5 соток
Про будинок:
• Цегляний, утеплений (пінопласт 10 см)
• Декоративний фасад «баранчик», дах металочерепиця
• Залита стяжка повністю, зроблено утеплення екструдер, тепла підлога (кухня + 2 санвузли)
• Встановлені якісні вхідні двері ABWEHR
Планування:
• 3 спальні
• Простора камінна вітальня
• 3 санвузли
• Велика кухня
• Гардеробна кімната
• Робочий кабінет
• Ігрова кімната
• Цокольне приміщення — 70 м² з окремим санвузлом
• 2 балкони, 2 видові відкриті тераси
Комунікації:
• Газове опалення- котел Vaillant
• Центральна вода та каналізація
• 30 кВт електроенергії
• Автоматичний бак для запасу води — 750 л
• Підзарядка для електромобіля
Територія:
• Критий паркінг на 3 авто
• Господарська споруда (6,5 × 3,5 м)
• Плодові дерева
• Розміри будинку: 13,5 × 11,5 м
Дуже гарна локація неподалік є дві школи, дитячі садочки, супермаркет, магазини, аптеки, міська лікарня.
Смета по ФІНАЛЬНИМ РОБОТАМ В будинку вже повністю розрахована — орієнтовно 40000$.
ЦЕ БУДУТЬ САМЕ ТІ МАТЕРІАЛИ, ЯКИ ОБЕРЕТЕ ВИ.
Усі деталі щодо цін та обсягу робіт — при особистій зустрічі.
Відкриті до діалогу.
Ціна 244000$
Телефонуйте і поїхали купувати!
Будинок повністю під чистове оздоблення — чудова можливість облаштувати інтер’єр, на власний смак.
Панорамні краєвиди з вікон, дві видові тераси, тиха спокійна вулиця.
Площа:
• Загальна — 246 м²
• Житлова — 138 м²
• Земельна ділянка — 14,5 соток
Про будинок:
• Цегляний, утеплений (пінопласт 10 см)
• Декоративний фасад «баранчик», дах металочерепиця
• Залита стяжка повністю, зроблено утеплення екструдер, тепла підлога (кухня + 2 санвузли)
• Встановлені якісні вхідні двері ABWEHR
Планування:
• 3 спальні
• Простора камінна вітальня
• 3 санвузли
• Велика кухня
• Гардеробна кімната
• Робочий кабінет
• Ігрова кімната
• Цокольне приміщення — 70 м² з окремим санвузлом
• 2 балкони, 2 видові відкриті тераси
Комунікації:
• Газове опалення- котел Vaillant
• Центральна вода та каналізація
• 30 кВт електроенергії
• Автоматичний бак для запасу води — 750 л
• Підзарядка для електромобіля
Територія:
• Критий паркінг на 3 авто
• Господарська споруда (6,5 × 3,5 м)
• Плодові дерева
• Розміри будинку: 13,5 × 11,5 м
Дуже гарна локація неподалік є дві школи, дитячі садочки, супермаркет, магазини, аптеки, міська лікарня.
Смета по ФІНАЛЬНИМ РОБОТАМ В будинку вже повністю розрахована — орієнтовно 40000$.
ЦЕ БУДУТЬ САМЕ ТІ МАТЕРІАЛИ, ЯКИ ОБЕРЕТЕ ВИ.
Усі деталі щодо цін та обсягу робіт — при особистій зустрічі.
Відкриті до діалогу.
Ціна 244000$
Телефонуйте і поїхали купувати!
ID: 893718104
Зв’язатися з продавцем
xxx xxx xxx
Опубліковано 05 жовтня 2025 р.
Продам сучасний двоповерховий будинок у м. Трускавець
244 000 $
Договірна
Місцезнаходження
Трускавець
Львівська область