Бізнес
Готовий співпрацювати з ріелторами
Відстань до найближчого міста: до 10 км.
Поверховість: 1
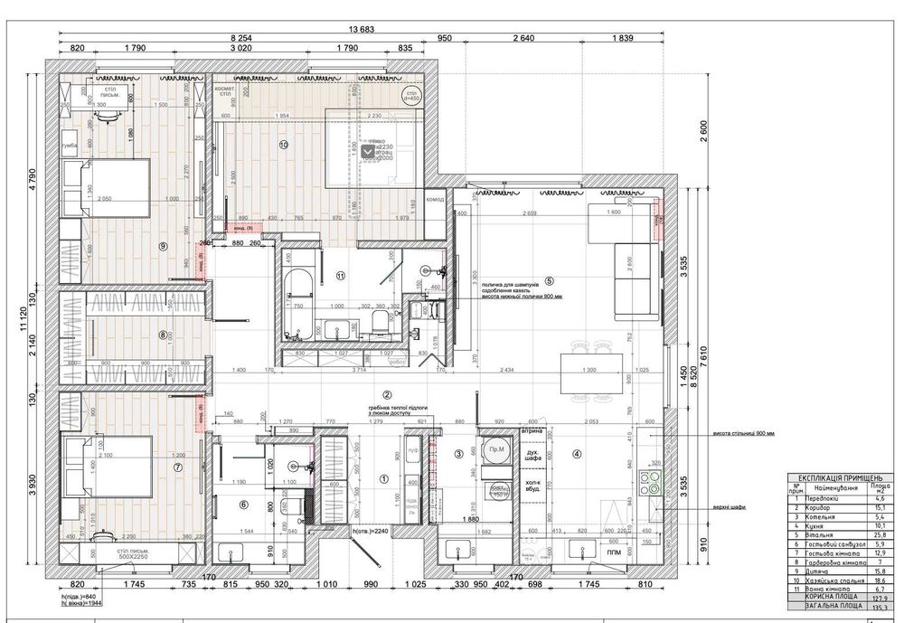
Загальна площа: 135 м²
Кількість кімнат: 4
Площа ділянки: 7 соток
Тип будинку: Будинок
Рік побудови / здачі: Після 2015
Тип стін: Газоблок
Зовнішнє утеплення стін: Мінеральна вата
Тип покрівлі: Бітумна черепиця
Cанвузол: 2 і більше
Побутова техніка: Посудомийна машина, Холодильник, Варильна панель, Духова шафа
Мультимедіа: Wi-Fi
Комфорт: Підсобні приміщення, Ванна, Огорожа, Підігрів підлоги, Душова кабіна, Тераса
Комунікації: Електрика, Центральний водопровід
Опис
Продам новый современный дом в Новоалександровке,
Дизайнерский ремонт, полностью по проекту.
Площадь дома: 135 кв+ терраса 25 кв/м
Земельный участок 7 соток
Спланирован:
- кухня-студия - 45 кв/м
- 3 спальни
- 2 санузла ( один с раковиной и душевой, второй санузел с душевой и ванной)
Гардеробная
Техническая комната/хоз. блок
+Master Room/ со своим санузлом
Дом построен с газоблока, утеплен минеральной ватой 100 мм.
Витражные окна.
Теплые водяные полы во всем доме.
Кровля- битумная черепица утеплена минеральной ватой.
На участке озеленение, автополив, ограждение.
Дом в стадии завершения ремонта. Дом получится очень светлым, теплым и домашним. Натуральное дерево в сочетании с однотонными светлыми элементами делают этот дом современным и практичным.
С уважением, Виктория!
Договоримся с вами за показ в любое удобное для вас время.
Дизайнерский ремонт, полностью по проекту.
Площадь дома: 135 кв+ терраса 25 кв/м
Земельный участок 7 соток
Спланирован:
- кухня-студия - 45 кв/м
- 3 спальни
- 2 санузла ( один с раковиной и душевой, второй санузел с душевой и ванной)
Гардеробная
Техническая комната/хоз. блок
+Master Room/ со своим санузлом
Дом построен с газоблока, утеплен минеральной ватой 100 мм.
Витражные окна.
Теплые водяные полы во всем доме.
Кровля- битумная черепица утеплена минеральной ватой.
На участке озеленение, автополив, ограждение.
Дом в стадии завершения ремонта. Дом получится очень светлым, теплым и домашним. Натуральное дерево в сочетании с однотонными светлыми элементами делают этот дом современным и практичным.
С уважением, Виктория!
Договоримся с вами за показ в любое удобное для вас время.
ID: 901086038
Зв’язатися з продавцем
xxx xxx xxx

