Бізнес
Вид об'єкта: Вторинний ринок
Без комісії
Готовий співпрацювати з ріелторами
Тип будинку: Житловий фонд 2011-2020-і
Поверх: 2
Рік введення в експлуатацію: 2 016
Поверховість: 9
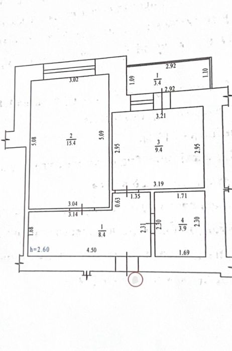
Загальна площа: 40 м²
Площа кухні: 9 м²
Клас житла: Комфорт
Кількість кімнат: 1 кімната
Cанвузол: Суміжний
Ремонт: Під чистову обробку
Меблювання: Ні
Комфорт: Балкон, лоджія, Ліфт
Інфраструктура (до 500 метрів): Відділення банку, банкомат, Аптека, Лікарня, поліклініка, Дитячий садок, Ринок, Дитячий майданчик, Відділення пошти, Ресторан, кафе, Школа, Магазин, кіоск, Супермаркет, ТРЦ, Зупинка транспорту
Опис
Продам квартиру, в якій можна втілити будь-яку вашу мрію.
Зробити власний дизайн та ремонт.
Жити самим.
Здавати в оренду.
Квартира підходить під всі побажання.
Розташована - по кільцю, гарна інфраструктура.
Опалення - індивідуальне, не залежить від відключень світла.
Поверх - другий)
В квартирі вже зроблена чистова стяжка, встановлені лічильники, заведена електрика.
І приємним бонусом є те, що вже оформлене право власності на квартиру, більше трьох років.
Квартира продається без комісії для покупця.
Перегляд - за домовленістю, ключі в АН.
Можна під державні програми.
Телефонуйте, домовимось.
Анна
Зробити власний дизайн та ремонт.
Жити самим.
Здавати в оренду.
Квартира підходить під всі побажання.
Розташована - по кільцю, гарна інфраструктура.
Опалення - індивідуальне, не залежить від відключень світла.
Поверх - другий)
В квартирі вже зроблена чистова стяжка, встановлені лічильники, заведена електрика.
І приємним бонусом є те, що вже оформлене право власності на квартиру, більше трьох років.
Квартира продається без комісії для покупця.
Перегляд - за домовленістю, ключі в АН.
Можна під державні програми.
Телефонуйте, домовимось.
Анна
ID: 910014792
Зв’язатися з продавцем
xxx xxx xxx
Опубліковано 02 березня 2026 р.
Продам квартиру в новому домі , без комісії
42 000 $
Місцезнаходження
Полтава
Полтавська область
