Бізнес
Вид об'єкта: Новобудова
Без комісії
Поверх: 7
Поверховість: 7
Загальна площа: 76 м²
Площа кухні: 10 м²
Тип стін: Цегляний
Клас житла: Бізнес
Кількість кімнат: 3 кімнати
Планування: Роздільна
Cанвузол: Роздільний
Опалення: Індивідуальне електро
Меблювання: Ні
Комфорт: Ліфт, Гардероб
Комунікації: Асфальтована дорога, Центральна каналізація, Електрика, Центральний водопровід
Ландшафт (до 1 км.): Озеро, Парк
Опис
Продам шикарну 3-кімнатну квартиру в одному з найкрсивіших ЖК нашого регіону - ЖК Гостомель Резіденст!
Велика, прибудинкова територія, закритого типу. Відразу поряд озеро.
Гарне, сучасне планування. Є ТЕРАСС з видом на озеро!
Індивідуальне газове опалення.
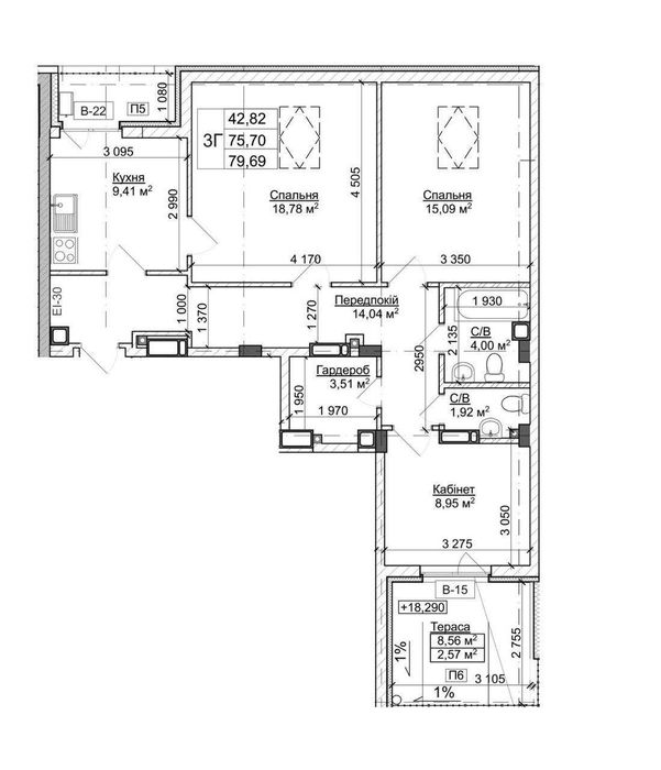
Площа 75,7 м2/житлова 42 м2/кухня 9,4 м2(можна перепланування і буде велика кухня-вітальня)
Кухня з балконом, три кімнати, 2 санвузла, гардеробна, тераса.
Поверх 7/7
Квартира на електриці. Наповнення : стяжка підлоги, встановлені радіатори в кожній кімнаті.
Велика, прибудинкова територія, закритого типу. Відразу поряд озеро.
Гарне, сучасне планування. Є ТЕРАСС з видом на озеро!
Індивідуальне газове опалення.
Площа 75,7 м2/житлова 42 м2/кухня 9,4 м2(можна перепланування і буде велика кухня-вітальня)
Кухня з балконом, три кімнати, 2 санвузла, гардеробна, тераса.
Поверх 7/7
Квартира на електриці. Наповнення : стяжка підлоги, встановлені радіатори в кожній кімнаті.
ID: 913416071
Зв’язатися з продавцем
xxx xxx xxx

