Бізнес
Вид об'єкта: Новобудова
Тип будинку: Житловий фонд від 2021 р.
Назва ЖК: ITOWN Пространство на Софиевской
Поверх: 4
Поверховість: 9
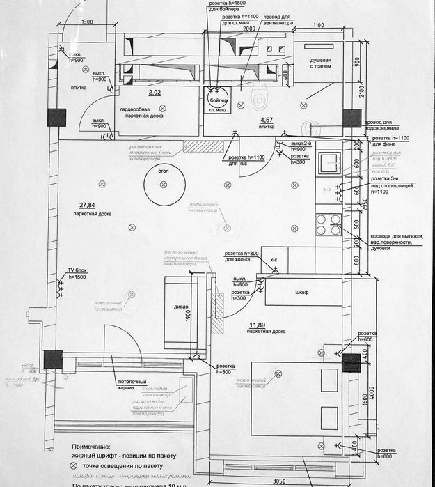
Загальна площа: 48.20 м²
Тип угоди: Переуступка
Площа кухні: 25.50 м²
Тип стін: Газоблок
Клас житла: Комфорт
Кількість кімнат: 1 кімната
Планування: Роздільна
Cанвузол: Суміжний
Опалення: Власна котельня
Ремонт: Авторський проект
Меблювання: Ні
Побутова техніка: Без побутової техніки
Комфорт: Балкон, лоджія, Конс'ерж, Ліфт, Підземний паркінг, Панорамні вікна, Охорона території, Душова кабіна, Гардероб
Комунікації: Центральна каналізація, Електрика, Газ
Інфраструктура (до 500 метрів): Центр міста, Парк, зелена зона, Дитячий майданчик, Магазин, кіоск, Супермаркет, ТРЦ, Зупинка транспорту
Ландшафт (до 1 км.): Парк, Море
Інклюзивність: Вхід в рівень з вулицею, Тактильні смуги на підлозі, Широкі двері в під'їзді (від 0,9 м.)
Опис
Зв’язатися з продавцем
xxx xxx xxx
