Бізнес
Відстань до найближчого міста: до 20 км.
Розташування: Частина будівлі
Тип об'єкта: Інше
Поверховість: 2
Загальна площа: 159 м²
Рік побудови / здачі: 1980 - 1989
Cанвузол: Ні
Опалення: Інше
Ремонт: Так
Меблювання: Ні
Побутова техніка: Без побутової техніки
Комунікації: Без комунікацій
Інфраструктура (до 500 метрів): Відділення банку, банкомат, Аптека, Шосе, траса, Лікарня, поліклініка, Відділення пошти, Ресторан, кафе, бар, Навчальні заклади
Ландшафт (до 1 км.): Гори
Опис
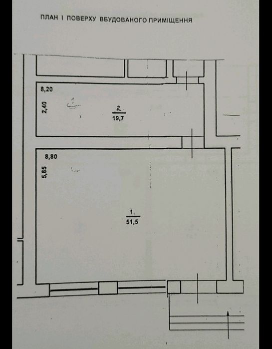
Продається приміщення, майже в центрі села, два поверхи, центральна частина будови. Потрібно зробити сходи на другий поверх, провести воду, завести світло. Документи в порядку, зроблено під комерцію.
Площа першого поверху 71.2м², другого 87.8 м²
Ціна обговорюється.
Оренда обговорюється.
Площа першого поверху 71.2м², другого 87.8 м²
Ціна обговорюється.
Оренда обговорюється.
ID: 870866701
Зв’язатися з продавцем
xxx xxx xxx
Опубліковано 14 квітня 2026 р.
Приміщення, продаж. Магазин, офіс
50 000 $
Договірна
Місцезнаходження
Терново
Закарпатська область
