Бізнес
Загальна площа: 95.60 м²
Cанвузол: Так
Опалення: Індивідуальне газове
Інфраструктура (до 500 метрів): Центр міста
Опис
Здається під довготривалу оренду приміщення в центрі Золотоноші.
Адреса: вул. Благовіщенська, 6.
Площа: 95,6 м²
Зручності:
- окремий вхід;
- парковка для авто;
- перший поверх;
- опалення, кондиціонер;
- окремий лічильник електроенергії;
- металеві решітки на вікнах;
- сигналізація, камери відеонагляду.
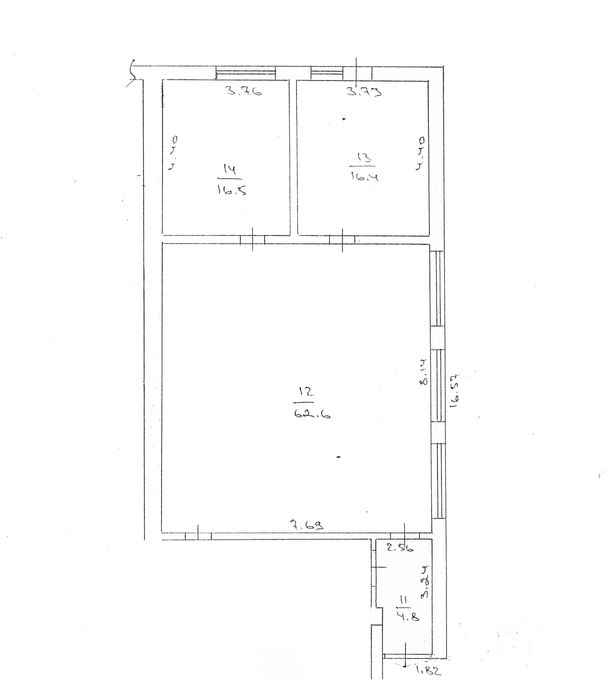
Просторе приміщення в одній будівлі з салоном краси. Складається з однієї великої кімнати (62,6 м²) та двох окремих кабінетів (по 16,5 м²). Є санвузол (унітаз, умивальник) та доступ до кладової.
Орендар може за потреби перефарбувати стіни чи зробити косметичний ремонт.
За деталями телефонуйте або пишіть у Вайбер:
+38 (09**********57
Адреса: вул. Благовіщенська, 6.
Площа: 95,6 м²
Зручності:
- окремий вхід;
- парковка для авто;
- перший поверх;
- опалення, кондиціонер;
- окремий лічильник електроенергії;
- металеві решітки на вікнах;
- сигналізація, камери відеонагляду.
Просторе приміщення в одній будівлі з салоном краси. Складається з однієї великої кімнати (62,6 м²) та двох окремих кабінетів (по 16,5 м²). Є санвузол (унітаз, умивальник) та доступ до кладової.
Орендар може за потреби перефарбувати стіни чи зробити косметичний ремонт.
За деталями телефонуйте або пишіть у Вайбер:
+38 (09**********57
ID: 878277142
Зв’язатися з продавцем
xxx xxx xxx
Опубліковано 06 листопада 2025 р.
Приміщення під оренду в центрі Золотоноші
180 грн.
Договірна
Місцезнаходження
Золотоноша
Черкаська область