Бізнес
Опис
Будівельна компанія СУПЕР СІП запрошує всіх, хто мріє про комфортне та екологічне житло, до співпраці з нами. СІП панелі є інноваційним матеріалом, який відрізняється високою теплоізоляцією, стійкістю до негативних погодних умов та швидкістю монтажу.
Побудуємо двоповерховий будинок площею 164 квадратних метри, споруджений з використанням енергоефективних матеріалів європейської якості.
Продумане планування:
Перший поверх: Вхідний тамбур, санвузол, зала - кухня з терасою.
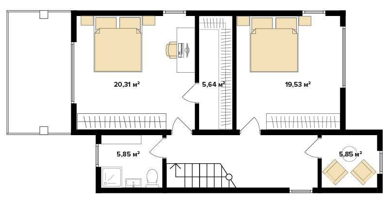
Другий поверх: Санвузол, технічна кімната, гардеробна та дві спальні по 20 квадратних метрів. (Є можливість перепланування на три спальні по 15 квадратних метрів).
Можливе перепланування внутрішніх кімнат за вашим бажанням.
Ціна будинку "Під Ключ" - 63100$
Будинок включає у себе:
• Домокомплект.
• Бетонний фундамент.
• Енергоефективні вікна з трьома склами, WDS з семи камерами.
• Фасад із застосуванням пінопласту та баранка.
• Покрівлю з ПВХ мембрани для плоского даху.
Звертайтесь прямо зараз, щоб дізнатися більше інформації.
Наша компанія має досвід у будівництві різноманітних об'єктів, від затишних сімейних будинків до багатоквартирних комплексів. Ми гарантуємо високу якість роботи, точність виконання проекту та своєчасну здачу об'єкту.
Побудуємо двоповерховий будинок площею 164 квадратних метри, споруджений з використанням енергоефективних матеріалів європейської якості.
Продумане планування:
Перший поверх: Вхідний тамбур, санвузол, зала - кухня з терасою.
Другий поверх: Санвузол, технічна кімната, гардеробна та дві спальні по 20 квадратних метрів. (Є можливість перепланування на три спальні по 15 квадратних метрів).
Можливе перепланування внутрішніх кімнат за вашим бажанням.
Ціна будинку "Під Ключ" - 63100$
Будинок включає у себе:
• Домокомплект.
• Бетонний фундамент.
• Енергоефективні вікна з трьома склами, WDS з семи камерами.
• Фасад із застосуванням пінопласту та баранка.
• Покрівлю з ПВХ мембрани для плоского даху.
Звертайтесь прямо зараз, щоб дізнатися більше інформації.
Наша компанія має досвід у будівництві різноманітних об'єктів, від затишних сімейних будинків до багатоквартирних комплексів. Ми гарантуємо високу якість роботи, точність виконання проекту та своєчасну здачу об'єкту.
ID: 846606519
Зв’язатися з продавцем
xxx xxx xxx

