Бізнес
Відстань до найближчого міста: до 5 км.
Поверховість: 2
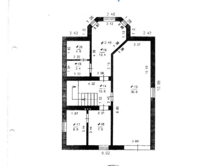
Загальна площа: 240 м²
Кількість кімнат: 4
Площа ділянки: 6 соток
Тип будинку: Котедж
Рік побудови / здачі: Після 2015
Тип стін: Газоблок
Cанвузол: 2 і більше
Опалення: Індивідуальне газове
Ремонт: Житловий стан
Інфраструктура (до 500 метрів): Школа, Ринок, Супермаркет, ТРЦ, Дитячий садок, Аптека, Відділення банку, банкомат, Відділення пошти
Опис
Продам дом жилой в 15 ти минутах от города. на 2 входа.Капитальное строение из газоблока Правильно сделана крыша. 3 уровня, 2 жилых этажа. Отопление двух контурный котел. В цокольном этаже сауна с душевой, комната отдыха. Техническое помещение с двумя резервными баками для воды 2000 л.
4 комнаты , Кухня студия 25 м. Частично французское остекление . .3 санузла., Кондиционеры. Под легкий косметический ремонт. Земли 6 соток. Хвойные деревья. документы на дом и землю, Прописка.Торгуемся!
4 комнаты , Кухня студия 25 м. Частично французское остекление . .3 санузла., Кондиционеры. Под легкий косметический ремонт. Земли 6 соток. Хвойные деревья. документы на дом и землю, Прописка.Торгуемся!
ID: 912465710
Зв’язатися з продавцем
xxx xxx xxx
Опубліковано 23 січня 2026 р.
ПГТ Таирово район Сухого лимана Дом 240 м +6 сот .15 мин от Одессы
135 000 $
Договірна
Місцезнаходження
Одеса, Київський
Одеська область
