Бізнес
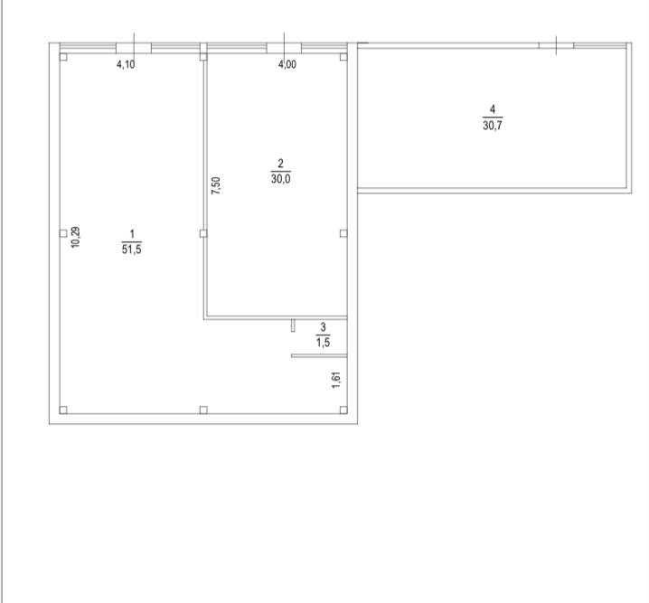
Загальна площа: 45 м²
Ремонт: Так
Комфорт: Панорамні вікна, Сигналізація
Комунікації: Центральна каналізація, Електрика, Центральний водопровід
Інфраструктура (до 500 метрів): Відділення банку, банкомат, Аптека, Лікарня, поліклініка, Супермаркет, ТРЦ, Транспортна розв'язка
Опис
Здається в оренду новий торговий об*єкт площею 45 м². Локація з високим пішохідним трафіком — поруч АТБ, зупинка транспорту, лікарня.
Підходить під:
-громадське харчування
-салон краси
-магазин або інший торговий бізнес
Переваги об'єкта:
Перша здача — все нове, готовий ремонт
Розташування у активній комерційній зоні
Орендні канікули на старт бізнесу
Бонуси: окремий вхід, панорамні вітрини, комунікації підключені
Орендар одноразово сплачує послуги ТОВ "МСН" ВАТІКАН у розмірі 50% від місячної орендної ставки.
Підходить під:
-громадське харчування
-салон краси
-магазин або інший торговий бізнес
Переваги об'єкта:
Перша здача — все нове, готовий ремонт
Розташування у активній комерційній зоні
Орендні канікули на старт бізнесу
Бонуси: окремий вхід, панорамні вітрини, комунікації підключені
Орендар одноразово сплачує послуги ТОВ "МСН" ВАТІКАН у розмірі 50% від місячної орендної ставки.
ID: 890922509
Зв’язатися з продавцем
xxx xxx xxx
Опубліковано 12 жовтня 2025 р.
ПЕРША ЗДАЧА! Новий МАФ біля АТБ — ідеально для бізнесу!
36 000 грн.
Місцезнаходження
Кривий Ріг, Покровський
Дніпропетровська область
